Zijlweg 47, Haarlem
BeschikbaarPrijs: € 1.325.000,-
Beschrijving
PUUR* woongeluk en een zeldzame kans (sleeping beauty) aan de Zijlweg: een volledig origineel, royaal stadspand van circa 314 m2 woonoppervlakte en 13 kamers, verdeeld over 4 bouwlagen, gebouwd in 1890 en sinds 1930 in bezit van één eigenaar. Dit imposante pand biedt uitzonderlijk hoge plafonds, authentieke ornamenten, schouwen, paneeldeuren en een klassieke en-suite structuur. De huidige staat is geheel origineel en vraagt om een volledige renovatie, maar juist daardoor ontstaat een unieke mogelijkheid om een karakteristiek pand geheel naar eigen inzicht te moderniseren. Met een riante achtertuin met achterom en een deels bedrijfsbestemming op de begane grond is dit een bijzonder veelzijdig object op een strategische locatie in Haarlem.
Over de buurt:
Het Garenkokerskwartier is een geliefde, levendige en gezellige stadswijk vlak bij het centrum van Haarlem. Je woont hier rustig, maar loopt zó naar de binnenstad met al haar cafés, restaurants en boetiekjes. Ook voor de dagelijkse boodschappen hoef je de buurt niet uit: in de directe omgeving vind je buurtwinkels, speciaalzaken en koffietentjes. Daarnaast ben je binnen enkele minuten in de natuur – zoals de Brouwerskolk of Elswout – om even heerlijk uit te waaien of te wandelen. Het Garenkokerskwartier is bovendien populair bij jonge stellen, gezinnen en expats, wat zorgt voor een prettige mix van bewoners en een fijne sfeer.
Goed om te weten:
* Uniek en volledig origineel hoek-herenhuis met ruime tuin en achterom
* Totale oppervlak ruim 340 m2 waarvan ca. 314 m2 woonoppervlak (incl. BG / zie meetrapport)
* Bouwjaar 1890
* Originele staat, volledige renovatie noodzakelijk
* Prachtige authentieke details: ornamenten, schouwen, paneeldeuren, suite stellen, trappenhuis, serre
* Hoge plafonds, grote raampartijen en royale ruimtes
* Bestemming = Gemengd-3, begane grond thans geen woonbestemming
* Ideaal voor wonen en werken aan huis
* Parkeren middels vergunning
* Randje centrum en op loopafstand van alle denkbare voorzieningen
* Bouwkundig rapport aanwezig
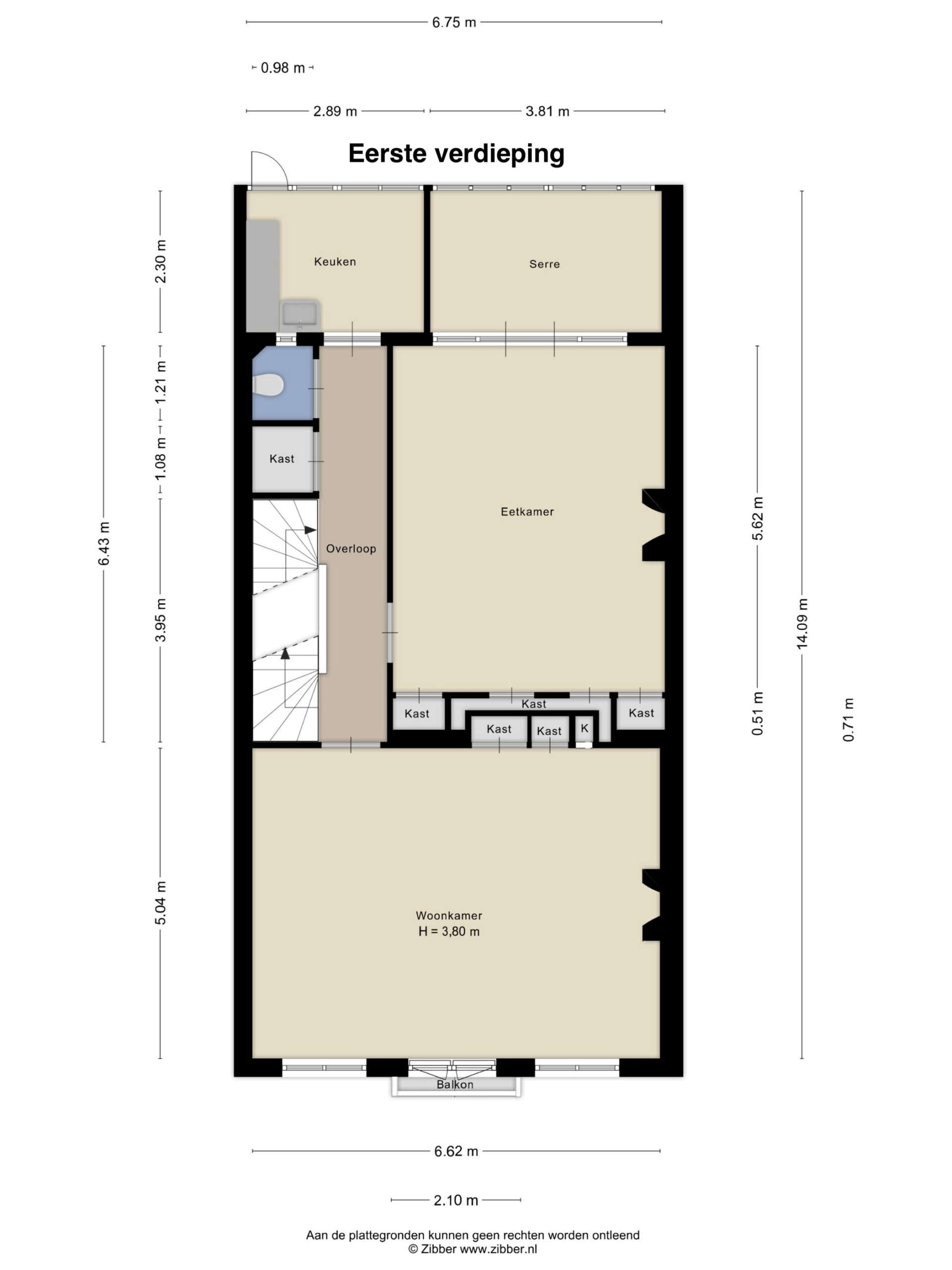
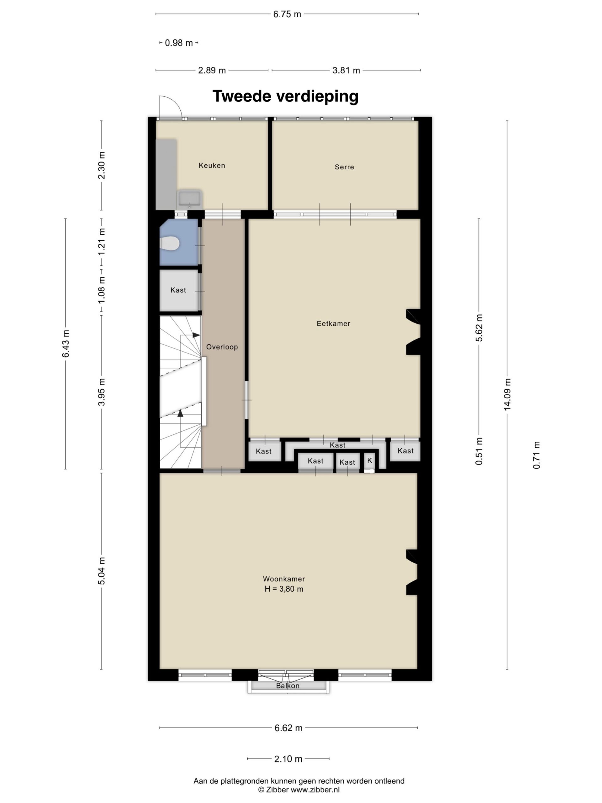
* Bekijk de plattegronden voor de indeling en maatvoering
* Een uitgebreide brochure is te downloaden via onze eigen website
* Diverse aanvullende clausules zullen worden opgenomen in de koopakte (zie brochure)
* Overdracht zal plaatsvinden bij notaris verkoper (Potma)!
* Aanvaarding in overleg, kan snel
*ENGLISH BELOW*
PUUR* living pleasure and a rare opportunity (sleeping beauty) on Zijlweg: a completely original, spacious townhouse with approximately 314 m² of living space and 13 rooms, spread over four floors, built in 1890 and owned by a single owner since 1930. This imposing property offers exceptionally high ceilings, authentic ornaments, fireplaces, panelled doors and a classic en-suite structure. The current condition is entirely original and requires a complete renovation, but this creates a unique opportunity to modernise a characteristic property entirely according to your own vision. With a spacious back garden with rear access and a partially commercial use on the ground floor, this is a particularly versatile property in a strategic location in Haarlem.
About the neighbourhood:
The Garenkokerskwartier is a popular, lively and pleasant neighbourhood close to the centre of Haarlem. It is a quiet place to live, but you can walk to the city centre with all its cafés, restaurants and boutiques. You don’t even have to leave the neighbourhood for your daily shopping: there are local shops, specialty shops and coffee bars in the immediate vicinity. In addition, you can be in nature within minutes – such as the Brouwerskolk or Elswout – to get some fresh air or go for a walk. The Garenkokerskwartier is also popular with young couples, families and expats, which makes for a pleasant mix of residents and a nice atmosphere.
Good to know:
* Unique and completely original corner townhouse with spacious garden and rear access
* Total surface area of over 340 m², of which approx. 314 m² is living space (including basement / see measurement report)
* Built in 1890
* Original condition, complete renovation required
* Beautiful authentic details: ornaments, fireplaces, panelled doors, suite sets, staircase, conservatory
* High ceilings, large windows and spacious rooms
* Designation = Mixed-3, ground floor currently not for residential use
* Ideal for living and working from home
* Parking by permit
* On the edge of the city centre and within walking distance of all conceivable amenities
* Structural report available
* View the floor plans for the layout and dimensions
* A comprehensive brochure can be downloaded from our website
* Various additional clauses will be included in the deed of sale (see brochure)
* Transfer will take place at the seller’s solicitor (Potma)!
* Acceptance in consultation, can be done quickly
Kenmerken
- Koopprijs
- € 1.325.000,-
- Plaats
- Haarlem
- Status
- Beschikbaar
- Buurt
- Garenkokerskwartier
- Aantal kamers
- 12
- Aantal slaapkamers
- 7
- Woonoppervlakte
- 314 m2
- Perceel oppervlakte
- 212 m2
- Ligging
- In centrum
- Bouwjaar
- 1890
- Isolatie
- Gedeeltelijk dubbelglas
- Type verwarming
- Gaskachels
- Onderhoud buiten
- Matig tot redeljk
- Onderhoud binnen
- Matig
- Voorzieningen
- Rookkanaal, Dakraam
- Energieklasse
- G
- Soort dak
- Mansardedak
- Parkeer faciliteiten
- Betaald parkeren, Parkeervergunningen
- Schuur/bergruimte
- 1
- Woning type
- Woonhuis
Plattegronden
Uitzicht op straat
Zoek de locatie
kom jij kijken?
Een bezoek vertelt het meest. Onze makelaars nemen graag de tijd voor een rustige rondleiding.
Contacteer ons nu


















































