Drakensteynstraat 22, Haarlem
BeschikbaarPrijs: € 795.000,-
Beschrijving
PUUR* woongeluk in de Koninginnebuurt, zeer verzorgde en instapklare en uitgebouwde tussenwoning gelegen aan de Drakensteynstraat 22 in Haarlem. Met een royale woonoppervlakte van circa 111 m², gelegen op een perceel van circa 142 m², biedt deze goed onderhouden woning veel comfort, licht en ruimte verdeeld over drie woonlagen. De woning beschikt over drie slaapkamers (met mogelijkheid tot vier), een grote tuin op het zuiden en een eigen carport, zodat je ten alle tijden altijd gratis kan parkeren op je eigen plek. De sfeer is modern, praktisch en door de afwerking direct klaar voor de volgende bewoner. Door de gunstige indeling en verzorgde staat is dit een woning waarin je je snel thuis zult voelen.
De ligging in Haarlem, in de buurt Koninginnebuurt binnen het Haarlemmerhoutkwartier, combineert rust en wooncomfort met uitstekende bereikbaarheid en voorzieningen op korte afstand. Op loop- en fietsafstand bevinden zich diverse supermarkten en winkels, evenals scholen en speelgelegenheden. Openbaar vervoer is goed bereikbaar met diverse busverbindingen en het treinstation Heemstede-Aerdenhout ligt op enkele minuten fietsen. De uitvalswegen richting de regio en Schiphol zijn vlot aan te rijden, waardoor zowel lokale als regionale bestemmingen goed bereikbaar zijn. Het straatbeeld is rustig en residentieel, passend bij dit deel van de stad Haarlem.
* 111 m² woonoppervlakte, circa 142 m² perceel
* Bouwjaar 1988
* Energielabel A
* 15 zonnepanelen en een LG thuisbatterij
* Fijne ruime achtertuin op het zuiden met verlichting, aangelegd door eigen huis en tuin
* Eigen carport aanwezig
* Goed onderhouden en instap klaar
* 3 slaapkamers met mogelijkheid tot 4
* Stenen schuur met elektra
* Oplevering in overleg
Indeling:
Begane grond: De gehele begane grond is voorzien van vloerverwarming. Entree, hal met modern toilet, meterkast en diepe trapkast. Aan de voorzijde bevindt zich de grote open keuken, voorzien van alle wenselijke apparatuur waaronder twee combi-ovens, een vaatwasser, een grote koelkast, een Quooker kraan en een ruime vriezer. De lichte woonkamer, voorzien van ruime uitbouw (dakbedekking vernieuwd in 2022) met een zonnescherm over de gehele breedte van de uitbouw, is rustig gelegen aan de achterzijde met zicht op de diepe achtertuin op het zuiden die je met openslaande deuren bereikt. De achtertuin beschikt over tuinverlichting, een losstaande stenen schuur voorzien van elektra en een carport die je bereikt via de achterom.
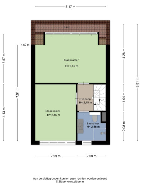
Eerste verdieping: Slaapkamer aan de voorzijde. Verzorgde badkamer voorzien van een toilet, wastafel met kast, douche en comfortabele vloerverwarming. Ruime slaapkamer, voorzien van dakkapel (dakbedekking vernieuwd in 2022), aan de achterzijde (mogelijk om te splitsen in 2 slaapkamers). Kastruimte in de knieschotten.
Tweede verdieping: Ruime zolderverdieping met nieuw dakkapel aan de voorzijde (2022), deze ruimte is geschikt als extra slaapkamer, werkruimte of bergruimte en kan naar wens worden ingericht. Aansluiting voor de wasmachine en droger en CV-ketel.
Bekijk de plattegronden voor de exacte indeling en maatvoering. Een uitgebreide brochure is te downloaden via onze eigen website.
*ENGLISH*
PUUR* happy living in the Koninginnebuurt neighbourhood, a well-maintained, ready-to-move-in, extended terraced house located at Drakensteynstraat 22 in Haarlem. With a generous living area of approximately 111 m², situated on a plot of approximately 142 m², this well-maintained house offers plenty of comfort, light and space spread over three floors. The house has three bedrooms (with the possibility of four), a large south-facing garden and a private carport, so you can always park for free in your own space. The atmosphere is modern, practical and, thanks to the finish, ready for the next occupant. The favourable layout and well-maintained condition make this a home where you will quickly feel at home.
Its location in Haarlem, in the Koninginnebuurt neighbourhood within the Haarlemmerhoutkwartier, combines tranquillity and living comfort with excellent accessibility and amenities within walking distance. Various supermarkets and shops, as well as schools and playgrounds, are within walking and cycling distance. Public transport is easily accessible with various bus connections, and the Heemstede-Aerdenhout train station is just a few minutes away by bicycle. The roads to the region and Schiphol Airport are easy to reach, making both local and regional destinations easily accessible. The streetscape is quiet and residential, in keeping with this part of the city of Haarlem.
* 111 m² living space, approximately 142 m² plot
* Built in 1988
* Energy label A
* 15 solar panels and an LG home battery
* Lovely spacious south-facing back garden with lighting, landscaped by the owners
* Private carport
* Well maintained and ready to move in
* 3 bedrooms with the possibility of 4
* Stone shed with electricity
* Delivery in consultation
Layout:
Ground floor: The entire ground floor has underfloor heating. Entrance hall with modern toilet, meter cupboard and deep stair cupboard. At the front is the large open kitchen, equipped with all desirable appliances including two combi ovens, a dishwasher, a large refrigerator, a Quooker tap and a spacious freezer. The bright living room, with a spacious extension (roof renewed in 2022) with an awning across the entire width of the extension, is quietly located at the rear with a view of the deep south-facing back garden, which you can access through French doors. The back garden has garden lighting, a detached stone shed with electricity and a carport that can be accessed via the back entrance.
First floor: Bedroom at the front. Well-maintained bathroom with a toilet, washbasin with cupboard, shower and comfortable underfloor heating. Spacious bedroom with dormer window (roofing renewed in 2022) at the rear (can be divided into 2 bedrooms). Cupboard space in the knee walls.
Second floor: Spacious attic with new dormer window at the front (2022), this space is suitable as an extra bedroom, workspace or storage space and can be furnished as desired. Connection for washing machine and dryer and central heating boiler.
See the floor plans for the exact layout and dimensions. A detailed brochure can be downloaded from our website.
Kenmerken
- Koopprijs
- € 795.000,-
- Plaats
- Haarlem
- Status
- Beschikbaar
- Buurt
- Koninginnebuurt
- Aantal kamers
- 4
- Aantal slaapkamers
- 3
- Aantal badkamers
- 1
- Woonoppervlakte
- 111 m2
- Perceel oppervlakte
- 142 m2
- Ligging
- Aan rustige weg, In woonwijk, Beschutte ligging
- Bouwjaar
- 1988
- Isolatie
- Dakisolatie, Muurisolatie, Vloerisolatie, Dubbelglas
- Type verwarming
- CV ketel, Vloerverwarming gedeeltelijk
- Onderhoud buiten
- Goed tot uitstekend
- Onderhoud binnen
- Goed tot uitstekend
- Voorzieningen
- Mechanische ventilatie, Dakraam, Zonnepanelen
- Energieklasse
- A
- Soort dak
- Zadeldak
- Parkeer faciliteiten
- Openbaar parkeren
- Schuur/bergruimte
- 1
- Woning type
- Woonhuis
Plattegronden
Uitzicht op straat
Zoek de locatie
kom jij kijken?
Een bezoek vertelt het meest. Onze makelaars nemen graag de tijd voor een rustige rondleiding.
Contacteer ons nu























































