Glipperweg 77, Heemstede
BeschikbaarPrijs: € 600.000,-
Beschrijving
Verrassend gelegen uitgebouwde hoekwoning met oprit, garage, zonnige tuin en aanlegsteiger aan open vaarwater.
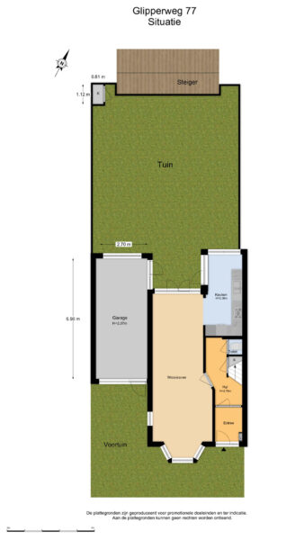
Deze halfvrijstaande woning is aan de achterzijde over de volle breedte uit- en opgebouwd waardoor er extra veel leefruimte is ontstaan. De woning met diverse authentieke details is van buiten netjes onderhouden, binnen zal de woning naar eigen smaak en woonwensen gemoderniseerd worden. Op de parterre vind je een lichte woonkamer met openslaande deuren naar de tuin en een half open keuken. De 1e verdieping bestaat uit 3 slaapkamers en een badkamer. De 2e verdieping heeft een kleine kinder-/hobbykamer en biedt veel bergruimte. Aan de voorzijde vind je een ruime voortuin, een oprit en toegang naar de aangebouwde stenen garage welke ook via de achtertuin bereikbaar is. De achtertuin heeft een zonnige ligging op het noordwesten en is voorzien van een aanlegsteiger. Vanaf hier vaar je met een sloep richting Haarlem of zelfs naar Amsterdam en in de winter als er ijs ligt, kan je de schaatsen onderbinden. Het huis ligt op de grens van Heemstede en Bennebroek met op slechts 2 minuten loopafstand o.a. een supermarkt en een slagerij voor je dagelijkse boodschappen. Dichtbij ligt het centrum van Heemstede, maar ook het historische stadshart van Haarlem, diverse wandel- en natuurgebieden, Europa’s grootste speeltuin Linnaeushof, scholen, sportfaciliteiten en uitvalswegen liggen in de nabijheid van dit unieke object.
Indeling:
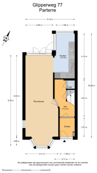
Parterre: entree, vestibule met granitovloer, marmeren wand en glas-in-lood, hal met trapkast en modern net zwevend toilet, lichte woonkamer met erker, extra zijraam en openslaande deuren naar tuin, eenvoudige keuken met diverse inbouwapparatuur en deur naar tuin, via hal trap naar….
1e Verdieping: overloop, zijkamer aan voorzijde met ruime inbouwkast, slaapkamer aan voorzijde met extra zijraam, inbouwkast en openslaande deuren naar balkon, slaapkamer aan achterzijde met inbouwkast, nette badkamer voorzien van douche, wastafel, zwevend toilet en vloerverwarming, via overloop trap naar….
2e Verdieping: overloop met veel bergruimte, kinder-/hobbykamer met dakraam en kast met cv-ketel
Bijzonderheden:
* Woonoppervlakte ca. 95 m2, inhoud ca. 471 m3 en 221 m2 eigen grond
* Zeer licht
* Zonnige tuin
* Verrassende ligging aan open vaarwater
* Eigen aanlegsteiger
* Ruime oprit
* Verwarmde stenen garage
* Zicht op de voormalige korenmolen uit 1760
* Op zeer korte loopafstand van de supermarkt
* Op fietsafstand van het strand en Haarlem
* Notariskeuze verkoper
* Voor indeling en maatvoering zie plattegronden
* Oplevering in overleg
Kenmerken
- Koopprijs
- € 600.000,-
- Plaats
- Heemstede
- Status
- Beschikbaar
- Buurt
- De Glip
- Aantal kamers
- 5
- Aantal slaapkamers
- 3
- Aantal badkamers
- 1
- Woonoppervlakte
- 95 m2
- Perceel oppervlakte
- 221 m2
- Ligging
- Aan water, In woonwijk, Aan vaarwater
- Bouwjaar
- 1928
- Isolatie
- Dubbelglas
- Type verwarming
- CV ketel, Vloerverwarming gedeeltelijk
- Onderhoud buiten
- Goed
- Onderhoud binnen
- Redelijk tot goed
- Voorzieningen
- TV kabel
- Energieklasse
- E
- Soort dak
- Samengesteld dak
- Parkeer faciliteiten
- Openbaar parkeren, Op eigen terrein
- Schuur/bergruimte
- 1
- Woning type
- Woonhuis
Plattegronden
Uitzicht op straat
Zoek de locatie
kom jij kijken?
Een bezoek vertelt het meest. Onze makelaars nemen graag de tijd voor een rustige rondleiding.
Contacteer ons nu






















































