J.C. van Oostzanenlaan 13, Heemstede
BeschikbaarPrijs: € 1.365.000,-
Beschrijving
In een rustige, brede laan staat dit royale en uitgebouwde hoekhuis. Deze karakteristieke drie-onder-een kap woning is rond 1924 gebouwd, in 2001 verbouwd en voorzien van een riante uitbouw. Hierdoor is op de parterre een indrukwekkende en lichte leefruimte gerealiseerd. Zodra je de woonkamer en de keuken ziet, word je verrast door de ruimte en de verrassende, gezellige indeling. Beide ruimtes zijn met elkaar verbonden maar doordat de keuken iets lager ligt, heeft deze toch een duidelijke eigen functie. De vele raampartijen en openslaande deuren maken de keuken bijzonder licht en zorgen voor een leuk zicht op de achtertuin. Door de hoekligging heeft het huis extra raampartijen, waaronder glas-in-lood aan zij- en voorkant van het huis, wat voor extra daglicht zorgt en het vrije zicht aan de voorzijde versterkt het ruimtelijke en lichte gevoel. Het huis is mede door de aantal kamers en de mogelijkheid om bijv. nog een extra badkamer op de 2e verdieping te realiseren zeer geschikt voor gezinnen. Op de parterre vind je o.a. een woonkamer, een zeer lichte, moderne keuken en een ruime berging welke ook zeer geschikt is als een werkkamer of bijkeuken. De 1e en 2e verdieping bestaan in totaal uit 5 slaapkamers, een moderne badkamer en een wasruimte. En op de vliering heb je voldoende bergruimte. Aan de voorzijde van het huis bevindt zich een voortuin, een oprit en een carport. De zonnige achtertuin is op het westen gelegen en is voorzien van zonnige terrassen.
De ligging is werkelijk ideaal voor het hele gezin. Het huis bevindt zich in de favoriete Schilderswijk op de grens van Heemstede en Haarlem-Zuid. Zeer centraal. Even een boodschap doen of lekker winkelen, doe je op de Binnenweg, de Raadhuisstraat of in de Jan van Goyenstraat die werkelijk direct om de hoek ligt. In deze winkelstraten kan je uitstekend terecht voor je dagelijkse boodschappen en je vindt hier een wekelijkse markt, veel leuke boetieks, cafés en restaurants waarvan 1 zelfs met een Michelinster om de hoek. Op de fiets ben je zo in het historische en bruisende stadshart van Haarlem met een scala aan winkels, cultuur en uitgaansgelegenheden. En wil je de natuur in, dichtbij vind je het stadsbos De Haarlemmerhout of wandelbos Groenendaal, diverse natuurgebieden en het strand. Maar ook diverse sportfaciliteiten, een overdekt zwembad, het NS-Station en uitvalswegen liggen in de buurt. Voor kinderen is dit een fantastische plek om op te groeien. In de buurt zijn meerdere basisscholen, middelbare scholen en hoger onderwijs. En ook kunnen ze hier heerlijk buiten spelen in één van de speeltuintjes in de buurt of bij bijv. de Bronsteevijver waar in de zomer gezwommen en gesupt wordt en in de winter geschaatst als het gevroren heeft.
Indeling:
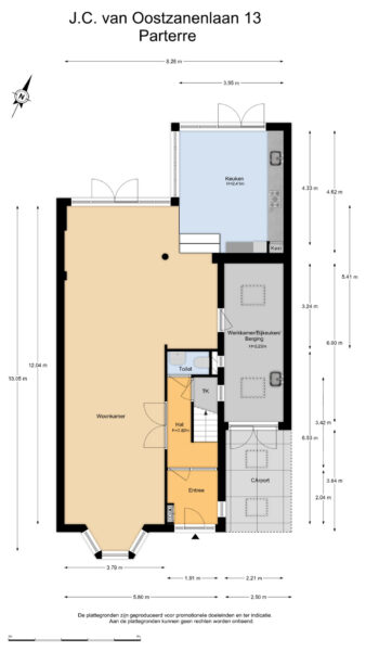
Parterre: entree, vestibule, hal voorzien van eiken parketvloer met bies, trapkast en modern zwevend toilet met fontein, uitgebouwde woonkamer met erker, eiken parketvloer met bies, schilderijrails en openslaande deuren naar tuin, uitgebouwde en verdiepte moderne keuken met diverse inbouwapparatuur, vloerverwarming, veel raampartijen en openslaande deuren naar tuin, aangebouwde stenen berging met verwarming, fontein, 2 lichtkoepels en openslaande deuren naar voorzijde/carport. Via de hal naar….
1e Verdieping: overloop met fraaie glas-in-lood ramen, zijkamer aan voorzijde met extra zijramen, slaapkamer aan voorzijde met inbouwkasten en deur naar balkon, slaapkamer aan achterzijde met inbouwkast en openslaande deuren naar balkon, moderne badkamer voorzien van douche, dubbele wastafel, zwevend toilet, handdoekradiator en inbouwkast, via overloop trap naar…..
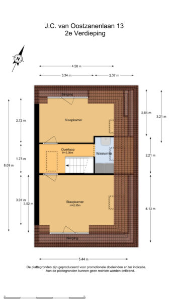
2e Verdieping: overloop met wasruimte voorzien van wasmachine/droger aansluiting, wastafel en dakraam, 2 slaapkamers voorzien van dakkapel, dakraam en bergruimte, via overloop vlizotrap naar……
Vliering: goede bergvliering met cv-ketel
Bijzonderheden:
* Woonoppervlakte ca. 180 m2, inhoud ca. 762 m3 en 280 m2 eigen grond
* Riante stijlvolle uitbouw aan achterzijde
* Fijn gezinshuis met 5 slaapkamers
* Diverse authentieke details w.o. glas-in-lood ramen
* Zonnige tuin op het westen
* Achterom aanwezig
* Voorzien van oprit en carport
* Vrij doorzicht aan voorzijde
* Voor indeling en maatvoering zie plattegronden
* Oplevering in overleg
Kenmerken
- Koopprijs
- € 1.365.000,-
- Plaats
- Heemstede
- Status
- Beschikbaar
- Buurt
- Heemsteedse Dreef, Schildersbuurt en omgeving
- Aantal kamers
- 6
- Aantal slaapkamers
- 5
- Aantal badkamers
- 1
- Woonoppervlakte
- 180 m2
- Perceel oppervlakte
- 280 m2
- Ligging
- Aan rustige weg, In woonwijk
- Bouwjaar
- 1924
- Isolatie
- Dakisolatie, Muurisolatie, Dubbelglas
- Type verwarming
- CV ketel, Vloerverwarming gedeeltelijk
- Onderhoud buiten
- Goed
- Onderhoud binnen
- Goed
- Voorzieningen
- Mechanische ventilatie, TV kabel, Dakraam
- Energieklasse
- C
- Soort dak
- Schilddak
- Parkeer faciliteiten
- Openbaar parkeren, Op eigen terrein
- Schuur/bergruimte
- 1
- Woning type
- Woonhuis
Plattegronden
Uitzicht op straat
Zoek de locatie
kom jij kijken?
Een bezoek vertelt het meest. Onze makelaars nemen graag de tijd voor een rustige rondleiding.
Contacteer ons nu


























































