Kleine Houtstraat 69, Haarlem
BeschikbaarPrijs: € 500.000,-
Beschrijving
PUUR* wonen in een karakteristieke hoekwoning vol historie en authentieke details, gelegen aan de geliefde Kleine Houtstraat in het hart van Haarlem. Het woonhuis beschikt op de begane grond over een gemengde bestemming. Deze woning uit ca. 1880 beschikt over originele houten balken, houten vloeren en een sfeervolle gevel en biedt circa 90 m² (excl. zolder à 9 m²) woonoppervlakte, verdeeld over drie woonlagen met in totaal vijf kamers. Het woonhuis verkeert grotendeels in oorspronkelijke staat en dient volledig gerenoveerd te worden, wat een unieke kans biedt om de woning geheel naar eigen smaak en wensen te moderniseren. Een zeldzame mogelijkheid om op een toplocatie een karakteristiek pand te transformeren tot een eigentijdse stadswoning.
De combinatie van authentieke elementen, de hoekligging en de centrale locatie maken dit een ideaal project voor liefhebbers van klussen, investeren of het creëren van een persoonlijk thuis met karakter.
Gelegen in de historische binnenstad van Haarlem, midden in de populaire buurt Heiliglanden, bevindt de woning zich in een levendige en karaktervolle omgeving met een mix van monumentale panden, speciaalzaken en horeca. De Kleine Houtstraat staat bekend als een van de gezelligste winkelstraten van de stad met boetieks, supermarkten, cafés en restaurants op loopafstand. Ook scholen, sportvoorzieningen en culturele hotspots liggen dichtbij. Het NS-station Haarlem is binnen enkele minuten per fiets bereikbaar en biedt snelle verbindingen richting Amsterdam, Schiphol en Leiden. Uitvalswegen richting de Randstad zijn eveneens goed bereikbaar, terwijl strand, duinen en natuurgebieden zich op korte afstand bevinden.
Goed om te weten
• Hoekwoning met gemengde bestemming op begane grond
• Woonoppervlakte circa 90 m² (exclusief zolderverdieping)
• Perceel circa 62 m²
• Inhoud circa 374 m³
• Bouwjaar circa 1880
• Vijf kamers
• Drie woonlagen
• Woning dient volledig gerenoveerd te worden
• Originele details en houten balken aanwezig
• Houten vloeren
• Dak in 2015 vernieuwd
• Eerste en tweede verdieping geheel voorzien van dubbel glas
• Verwarming middels CV-ketel
• Toegang via voorzijde en achterdeur (met tuin) vanuit Groendaalsteeg
• Parkeren middels parkeervergunning
• Oplevering in overleg
Indeling
Begane grond
Via de entree aan de voorzijde toegang tot de woonkamer en voorzien van houten vloeren en originele balken. Aan de achterzijde is ruimte voor een keukenopstelling en bijkeuken met toegang tot buiten en deur richting de Groendaalsteeg.
Via de hal is het separate toilet en badkamer te bereiken.
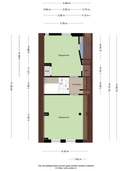
Eerste verdieping
Via de overloop zijn twee slaapkamers bereikbaar, waarvan één uitgerust met wasbak (optie tot en-suite badkamer).
Tweede verdieping
De tweede verdieping is bereikbaar via een vaste trap en biedt een twee extra kamers die gebruikt kan worden als slaapkamer of werkruimte. De tweede etage is aangemerkt als overige inpandige ruimte vanwege de hoogte en behoort niet tot het gebruiksoppervlak wonen. Dit betekent dat de woning in werkelijkheid groter is dan 90 m².
Bekijk de plattegronden voor de exacte indeling en maatvoering. Een uitgebreide brochure is te downloaden via onze eigen website.
*ENGLISH BELOW*
PUUR* living in a characteristic corner house full of history and authentic details, located on the beloved Kleine Houtstraat in the heart of Haarlem. The ground floor of the house has a mixed use. This house, dating from around 1880, has original wooden beams, wooden floors, and an attractive facade, and offers approximately 90 m² (excluding the 9 m² attic) of living space, spread over three floors with a total of five rooms. The house is largely in its original condition and needs to be completely renovated, offering a unique opportunity to modernize the house entirely to your own taste and wishes. A rare opportunity to transform a characteristic building in a prime location into a contemporary city home.
The combination of authentic elements, the corner location, and the central location make this an ideal project for those who love to renovate, invest, or create a personal home with character.
Located in the historic city center of Haarlem, in the heart of the popular Heiliglanden neighborhood, the property is situated in a lively and characterful area with a mix of historic buildings, specialty shops, and restaurants. Kleine Houtstraat is known as one of the city’s most pleasant shopping streets, with boutiques, supermarkets, cafés, and restaurants within walking distance. Schools, sports facilities, and cultural hotspots are also nearby. Haarlem railway station is just a few minutes away by bike and offers fast connections to Amsterdam, Schiphol Airport, and Leiden. Major roads to the Randstad are also easily accessible, while the beach, dunes, and nature reserves are a short distance away.
Good to know
• Corner house with mixed use on the ground floor
• Living area approximately 90 m² (excluding attic floor)
• Plot approximately 62 m²
• Volume approximately 374 m³
• Built around 1880
• Five rooms
• Three floors
• House needs to be completely renovated
• Original details and wooden beams present
• Wooden floors
• Roof renewed in 2015
• First and second floors fully double glazed
• Heating via central heating boiler
• Access via front and back door (with garden) from Groendaalsteeg
• Parking via parking permit
• Delivery in consultation
Layout
Ground floor
The entrance at the front provides access to the living room, which has wooden floors and original beams. At the rear, there is space for a kitchen and utility room with access to the outside and a door leading to Groendaalsteeg.
The separate toilet and bathroom can be reached via the hall.
First floor
Two bedrooms are accessible via the landing, one of which is equipped with a sink (option for an en-suite bathroom).
Second floor
The second floor is accessible via a fixed staircase and offers two additional rooms that can be used as bedrooms or workspaces. The second floor is designated as other indoor space due to its height and is not included in the usable living area. This means that the house is actually larger than 90 m².
See the floor plans for the exact layout and dimensions. A detailed brochure can be downloaded from our website.
Kenmerken
- Koopprijs
- € 500.000,-
- Plaats
- Haarlem
- Status
- Beschikbaar
- Buurt
- Heiliglanden
- Aantal kamers
- 5
- Aantal slaapkamers
- 4
- Woonoppervlakte
- 90 m2
- Perceel oppervlakte
- 62 m2
- Ligging
- Aan rustige weg, In centrum
- Bouwjaar
- 1880
- Onderhoud buiten
- Redelijk
- Onderhoud binnen
- Matig
- Energieklasse
- F
- Soort dak
- Samengesteld dak
- Parkeer faciliteiten
- Betaald parkeren, Parkeervergunningen
- Woning type
- Woonhuis
Plattegronden
Uitzicht op straat
Zoek de locatie
kom jij kijken?
Een bezoek vertelt het meest. Onze makelaars nemen graag de tijd voor een rustige rondleiding.
Contacteer ons nu




































