Koninginneweg 34, Haarlem
BeschikbaarPrijs: € 900.000,-
Beschrijving
PUUR* wonen in dit karakteristieke herenhuis aan de Koninginneweg in Haarlem Zuid uit 1890 met zes slaapkamers, maar liefst 187 m² woonoppervlakte aan de rand van het centrum en een zonnige achtertuin op het westen. Deze royale tussenwoning aan de Koninginneweg 34 in Haarlem biedt een unieke kans om te verbouwen naar eigen inzicht, in combinatie met de nog aanwezige authentieke details. De woning verkeert in bijna originele staat. Met onder meer marmeren vloeren, kamer en suite met originele paneeldeuren en glas in loodramen, en schitterend zicht op de kathedraal De Bavo. Kortom een huis op een toplocatie aan de rand van het centrum.
Dit sfeervolle familiehuis aan de Koninginneweg ligt om de hoek van het bruisende centrum. De villa’s en herenhuizen in de Koninginnebuurt zijn door verschillende architecten ontworpen vóór of rond 1900, waardoor elk huis uniek is. Het voelt alsof je terug in de tijd stapt wanneer je door de buurt loopt. Dit rustige deel van de Koninginneweg heeft geen doorgaand verkeer, wat het ook heel kindvriendelijk maakt. Op fiets afstand liggen de bossen Elswout en De Hout, evenals het bruisende stadsleven met zijn vele restaurants, gezellige eetcafés, ateliers en winkels. Uitgaansgelegenheden en musea zoals het Teylers Museum, het Frans Hals Museum, de Toneelschuur, de Philharmonie en de Stadsschouwburg zijn vlakbij. Het huis is gunstig gelegen ten opzichte van de treinstations Haarlem, Heemstede-Aerdenhout en de uitvalswegen naar Utrecht, Den Haag, Amsterdam en Schiphol. De duinen en stranden zijn op fietsafstand.
Goed om te weten:
* Familiehuis, aan de rand van het centrum dat nog volledig gerenoveerd dient te worden.
* Bouwjaar 1890
* Circa 187 m² woonoppervlakte
* 6 slaapkamers
* 3 woonlagen en ruime bergzolder
* Voortuin en achtertuin op het westen
* Schuur in de achtertuin
* Zicht op de kathedraal De Bavo
* Balken vloer op de begane grond vernieuwd !,
* Kamer en suite met originele paneeldeuren
* Kruipruimte met schelpen in de kruipruimte
* Meterkast vernieuwd
* Parkeren middels vergunning direct beschikbaar en bezoekers pas voor de visite
* Grote Houtstraat: 5 minuten lopen
* Stations Haarlem en Heemstede-Aerdenhout: beide 10 minuten fietsen
* Strand en duinen: 25 minuten fietsen
* Oplevering in overleg kan op korte termijn
Indeling
Begane grond
Via de voortuin, entree in de hal met vestibule met garderobe en meterkast, marmeren vloer , toilet, trapkast en kelder met stahoogte. Vanuit de hal toegang tot de voorkamer met open haard en suite naar achterkamer en serre, met prachtig zicht op de kathedraal De Bavo. Serre en schuifpui naar de achtertuin met achterom. De dichte, eenvoudige keuken bevindt zich eveneens aan de achterzijde.
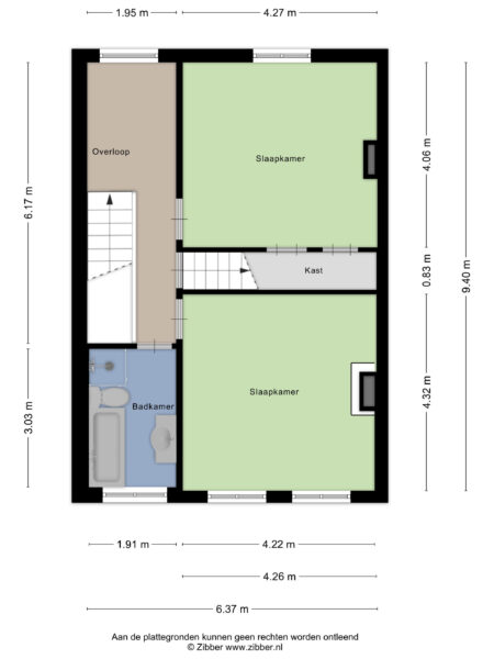
Eerste verdieping
Via de trap in de hal naar ruime overloop (voorheen een slaapkamer) met toegang tot twee zeer ruime slaapkamers en eenvoudige badkamer.
Tweede verdieping
Via vaste trap bereikbare overloop met toegang tot vier slaapkamers. Dankzij de volwaardige verdieping en de dakkapellen is dit een etage met diverse indelingsmogelijkheden, voor wasruimte en 2e badkamer, een
Bekijk de plattegronden voor de exacte indeling en maatvoering. Een uitgebreide brochure is te downloaden via onze eigen website.
*ENGLISH BELOW*
PUUR* living in this characteristic mansion on Koninginneweg in Haarlem Zuid, dating from 1890, with six bedrooms, no less than 187 m² of living space on the edge of the city center, and a sunny west-facing backyard. This spacious terraced house at Koninginneweg 34 in Haarlem offers a unique opportunity to renovate to your own taste, while retaining the authentic details that are still present. The house is in almost original condition. It features marble floors, a room en suite with original panel doors and stained glass windows, and a magnificent view of St. Bavo’s Cathedral. In short, a house in a prime location on the edge of the city center.
This charming family home on Koninginneweg is just around the corner from the bustling city center. The villas and mansions in the Koninginnebuurt neighborhood were designed by various architects before or around 1900, making each house unique. Walking through the neighborhood feels like stepping back in time. This quiet part of Koninginneweg has no through traffic, making it very child-friendly. The Elswout and De Hout forests are within cycling distance, as is the bustling city life with its many restaurants, cozy cafés, studios, and shops. Entertainment venues and museums such as the Teylers Museum, the Frans Hals Museum, the Toneelschuur, the Philharmonie, and the Stadsschouwburg are nearby. The house is conveniently located for the Haarlem and Heemstede-Aerdenhout train stations and the roads to Utrecht, The Hague, Amsterdam, and Schiphol Airport. The dunes and beaches are within cycling distance.
Good to know:
* Family home on the edge of the city center, in need of complete renovation.
* Built in 1890
* Approximately 187 m² of living space
* 6 bedrooms
* 3 floors and spacious attic storage space
* Front and back gardens facing west
* Shed in the back garden
* View of St. Bavo’s Cathedral
* Beamed floor on the ground floor renovated!
* Room en suite with original panel doors
* Crawl space with shells in the crawl space
* Meter cupboard renovated
* Parking available immediately with a permit and visitor pass for visitors
* Grote Houtstraat: 5 minutes’ walk
* Haarlem and Heemstede-Aerdenhout stations: both 10 minutes by bike
* Beach and dunes: 25 minutes by bike
* Delivery in consultation can be done at short notice
Layout
Ground floor
Through the front garden, entrance into the hall with vestibule with wardrobe and meter cupboard, marble floor, toilet, stair cupboard, and basement with standing room. From the hall, access to the front room with fireplace and en suite to the back room and conservatory, with beautiful views of St. Bavo’s Cathedral. Conservatory and sliding doors to the backyard with back entrance. The closed, simple kitchen is also located at the rear.
First floor
The staircase in the hall leads to a spacious landing (formerly a bedroom) with access to two very spacious bedrooms and a simple bathroom.
Second floor
Fixed staircase leading to landing with access to four bedrooms. Thanks to the full floor and dormer windows, this floor offers various layout options, for a laundry room and second bathroom, a
See the floor plans for the exact layout and dimensions. A comprehensive brochure can be downloaded from our website.
Kenmerken
- Koopprijs
- € 900.000,-
- Plaats
- Haarlem
- Status
- Beschikbaar
- Buurt
- Koninginnebuurt
- Aantal kamers
- 8
- Aantal slaapkamers
- 6
- Aantal badkamers
- 1
- Woonoppervlakte
- 187 m2
- Perceel oppervlakte
- 172 m2
- Ligging
- Aan rustige weg, In woonwijk
- Bouwjaar
- 1890
- Type verwarming
- CV ketel
- Onderhoud buiten
- Redelijk tot goed
- Onderhoud binnen
- Matig tot redelijk
- Voorzieningen
- TV kabel, Rookkanaal, Schuifpui
- Energieklasse
- D
- Soort dak
- Zadeldak
- Parkeer faciliteiten
- Betaald parkeren, Parkeervergunningen
- Schuur/bergruimte
- 1
- Woning type
- Woonhuis
Plattegronden
Uitzicht op straat
Zoek de locatie
kom jij kijken?
Een bezoek vertelt het meest. Onze makelaars nemen graag de tijd voor een rustige rondleiding.
Contacteer ons nu




















































