Lange Wijngaardstraat 27RD, Haarlem
Verkocht onder voorbehoudPrijs: € 685.000,-
Beschrijving
PUUR* wonen aan de Lange Wijngaardstraat 27 – Ruimte, karakter en eindeloze mogelijkheden midden in de historische binnenstad.
Aan een rustige straat in het hart van Haarlem staat dit riante herenhuis / gezinswoning van ca. 151 m2, een zeldzame kans voor wie groots wil wonen in de stad en het leuk vindt om een huis helemaal naar eigen hand te zetten. Hier ligt de perfecte basis om met visie, inlevingsvermogen en een dosis liefde een indrukwekkend en comfortabel familiehuis te creëren.
De woning beschikt over een zonnige stadstuin op het zuidoosten, waar je in de zomer heerlijk in het zonnetje zit, kunt buiten eten en genieten van de rust – terwijl de levendigheid van de stad letterlijk om de hoek ligt. Extra bijzonder: op steenworp afstand bevindt zich de Wijngaardtuin, een groene en beschutte binnentuin die aanvoelt als een verborgen oase midden in de binnenstad.
Binnen biedt het huis volop ruimte en mogelijkheden. Met een herindeling en modernisering is hier een woning te realiseren met een royale leefruimte, 4 à 5 slaapkamers en eventueel zelfs 2 badkamers – ideaal voor gezinnen, thuiswerkers of wie gewoon graag ruim woont. De tweede verdieping is recent gemoderniseerd en strak afgewerkt, een fijn vertrekpunt binnen het geheel.
Het huis is grotendeels intern gedateerd en vraagt om modernisering, maar juist dát maakt deze woning zo aantrekkelijk: een unieke kans om alles volledig af te stemmen op je eigen woonwensen en woonstijl. Het huidige energielabel C biedt bovendien een uitstekend uitgangspunt om tijdens de verbouwing verdere stappen te zetten richting verduurzaming.
De buurt
De Lange Wijngaardstraat ligt midden in de historische binnenstad, maar is opvallend rustig en gemoedelijk. In de directe omgeving vind je charmante straatjes, monumentale panden en een fijne mix van bewoners. Om de hoek liggen leuke buurtwinkels, speciaalzaken, koffietentjes en restaurants. De Grote Markt, het Spaarne, musea, scholen en openbaar vervoer zijn allemaal op loopafstand. Hier woon je stads, maar met ruimte, rust en groen binnen handbereik.
Goed om te weten:
* Het betreft hier de gehele woning!!
* Ideaal gezinshuis met stadstuin
* Woonoppervlak ca. 151 m2 (zie meetrapport)
* Zonnige stadstuin op het zuidoosten
* Goede verbouwings- en indelingsmogelijkheden
* Potentie voor 4 à 5 slaapkamers en 2 badkamers
* Tweede verdieping recentelijk gemoderniseerd
* Energielabel C, mooie kans om verder te verduurzamen
* Rustige straat midden in de binnenstad
* Groene Wijngaardtuin om de hoek
* Alle voorzieningen op loopafstand
* Woning wordt verkocht ‘as is, where is’
* Aanvaarding in overleg, kan snel!
*ENGLISH BELOW*
PUUR* living at Lange Wijngaardstraat 27 – Space, character, and endless possibilities in the heart of the historic city center.
On a quiet street in the heart of Haarlem stands this spacious mansion/family home of approx. 151 m2, a rare opportunity for those who want to live large in the city and enjoy customizing a home to their own taste. Here lies the perfect foundation to create an impressive and comfortable family home with vision, empathy, and a dose of love.
The house has a sunny southeast-facing city garden, where you can sit in the sun in summer, eat outside, and enjoy the peace and quiet—while the liveliness of the city is literally just around the corner. An extra special feature: a stone’s throw away is the Wijngaardtuin, a green and sheltered courtyard garden that feels like a hidden oasis in the middle of the city center.
Inside, the house offers plenty of space and possibilities. With a redesign and modernization, it is possible to create a home with a spacious living area, 4 to 5 bedrooms, and possibly even 2 bathrooms—ideal for families, home workers, or anyone who simply likes to live in a spacious home. The second floor has been recently modernized and finished with a sleek design, providing a nice starting point for the entire house.
The interior of the house is largely outdated and in need of modernization, but that is precisely what makes this property so attractive: a unique opportunity to tailor everything completely to your own living requirements and style. The current energy label C also offers an excellent starting point for taking further steps towards sustainability during the renovation.
The neighborhood
Lange Wijngaardstraat is located in the heart of the historic city center, but is remarkably quiet and pleasant. In the immediate vicinity, you will find charming streets, historic buildings, and a nice mix of residents. Around the corner are nice neighborhood shops, specialty stores, coffee shops, and restaurants. The Grote Markt, the Spaarne, museums, schools, and public transportation are all within walking distance. Here you live in the city, but with space, tranquility, and greenery within easy reach.
Good to know:
* This is the entire house!
* Ideal family home with city garden
* Living area approx. 151 m2 (see measurement report)
* Sunny southeast-facing city garden
* Good renovation and layout options
* Potential for 4 to 5 bedrooms and 2 bathrooms
* Second floor recently modernized
* Energy label C, great opportunity to make it more sustainable
* Quiet street in the city center
* Green Wijngaardtuin around the corner
* All amenities within walking distance
* Property is sold ‘as is, where is’
* Acceptance in consultation, can be done quickly!
Kenmerken
- Koopprijs
- € 685.000,-
- Plaats
- Haarlem
- Status
- Verkocht onder voorbehoud
- Buurt
- Bakenes
- Aantal kamers
- 4
- Aantal slaapkamers
- 3
- Aantal badkamers
- 2
- Woonoppervlakte
- 151 m2
- Perceel oppervlakte
- 84 m2
- Ligging
- Aan rustige weg, In centrum
- Bouwjaar
- 1900
- Isolatie
- Dakisolatie, Gedeeltelijk dubbelglas
- Type verwarming
- CV ketel
- Onderhoud buiten
- Matig tot redeljk
- Onderhoud binnen
- Matig tot redelijk
- Voorzieningen
- Dakraam, Glasvezel kabel
- Energieklasse
- C
- Soort dak
- Mansardedak
- Parkeer faciliteiten
- Betaald parkeren, Parkeervergunningen
- Schuur/bergruimte
- 1
- Woning type
- Woonhuis
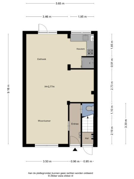
Plattegronden
Uitzicht op straat
Zoek de locatie
kom jij kijken?
Een bezoek vertelt het meest. Onze makelaars nemen graag de tijd voor een rustige rondleiding.
Contacteer ons nu



















































