Pieter van Musschenbroekstraat 221, Haarlem
BeschikbaarPrijs: € 1.098.000,-
Beschrijving
*OPEN HUIS OP ZATERDAG 7 MAART VAN 10:00 TOT 12:00 UUR*
Fantastische stadswoning (energielabel A) met een woonoppervlakte van maar liefst 235 m2 met tuin, dakterras en een eigen parkeerplaats. Op slechts 5 minuten loopafstand van station Heemstede-Aerdenhout en de kwaliteitswinkels aldaar, op 8 min fietsen naar centrum Haarlem en ook het strand is om de hoek. De woning ligt dus in de “reuring” aan een rustige ventweg en binnen is volop privacy.
Dit woning is gebouwd in 2017 en heeft een zeer verrassende indeling. Op de parterre een multifunctionele ruimte met een modern keukenblok en er is zelfs een bar. Je hebt hier ook mogelijkheid om eventueel een eigen wooneenheid (bijv. mantelzorg/au pair/thuiswonend kind etc.) te realiseren of in te richten als kantoor/praktijk ruimte.
De 1e verdieping bestaat uit een royale living met toegang naar de fraaie tuin en aan de voorzijde is een luxe keuken v.v. alle wenselijk apparatuur.
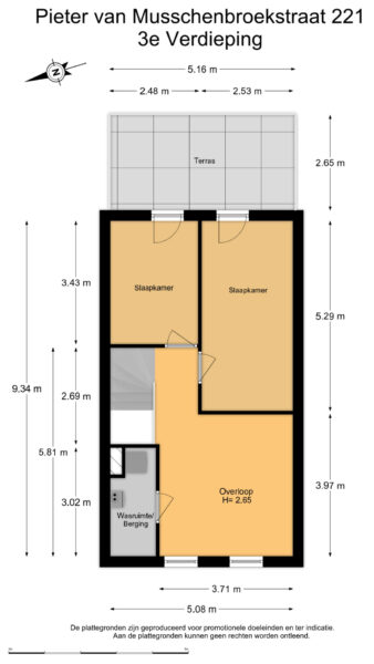
Op de 2e verdieping vindt je een slaapkamer, een badkamer en een riante overloop welke nu als kleedkamer is ingericht. De 3e verdieping bestaat uit 2 slaapkamers met toegang naar het dakterras, een was/stook/bergruimte en een royale overloop thans ingericht als gym maar deze ruimte is ook zeer geschikt als bijv. chillroom, speelkamer of studeer-/werkruimte.
Vanaf de 1e verdieping is er vrij en groen uitzicht. Heb je behoefte aan meer kamers dan is dat eenvoudig op elke verdieping te realiseren.
De zonnige tuin met vrijstaande berging en een achterom grenst direct aan een fraai ingericht en afgesloten binnenterrein waar je heerlijk rustig kunt zitten en welke ook zeer kindvriendelijk is en direct toegang geeft naar de ondergelegen parkeerkelder. Voor de deur geniet je tot laat in de avond met een hapje en een drankje van de ondergaande zon. In de afgesloten parkeergarage heb je een eigen parkeerplaats.
Indeling:
Parterre: entree, hal voorzien van modern zwevend toilet met fontein, zeer royale multifunctionele kamer met modern keukenblok en ruime berging (aansluitingen voor badkamer aanwezig), trap in hal naar….
1e Verdieping: overloop voorzien van modern zwevend toilet met fontein, lichte woonkamer met vloerverwarming deur naar tuin en moderne open keuken met kookeiland voorzien van zitbar en diverse inbouwapparatuur, trap op overloop naar….
2e Verdieping: riante overloop thans ingedeeld als kleedkamer, modern zwevend toilet met fontein, grote slaapkamer, moderne badkamer met ligbad, inloopdouche en dubbele wastafel, trap naar op overloop naar ….
3e Verdieping: ruime overloop thans ingedeeld als gym maar ook uitstekend geschikt als werkkamer, berg-/stook-/wasruimte met cv-ketel en wasmachine aansluiting, twee slaapkamers voorzien van deur naar dakterras
Bijzonderheden:
* Woonoppervlakte ca. 235 m2, inhoud ca. 801 m3 en 74 m2 eigen grond
* Duurzaam wonen, energielabel A
* 10 Zonnepanelen (geplaatst 2022)
* Volledig geïsoleerd
* Voorzijde voorzien van driedubbel HR+++ glas en achterzijde HR++ glas
* Verrassend ingedeeld
* Mogelijkheid om extra kamers te creëeren
* Woonkamer en keuken 1e verdieping voorzien van vloerverwarming
* Automatisch ventilatiesysteem
* Parterre voorzien van apart ventilatie en verwarmingssyteem
* Zonnige tuin met achterom
* Zonnig dakterras
* Eigen parkeerplaats met elektrisch laadpunt in afgesloten parkeergarage
* Vrij ligging aan voorzijde
* Vrij uitzicht vanaf 1e verdieping
* Uitstekende mogelijkheid voor mantelzorg of kantoor/praktijk aan huis
* Voor indeling en maatvoering zie plattegronden
* Oplevering in overleg
*ENGLISH BELOW*
Fantastic townhouse (energy label A) with a living area of no less than 235 m2 with garden, roof terrace, and private parking space. Just a 5-minute walk from Heemstede-Aerdenhout station and the quality shops there, an 8-minute bike ride to the center of Haarlem, and the beach is just around the corner. The house is located in a quiet side street, yet close to all the action, and offers plenty of privacy inside.
This house was built in 2017 and has a very surprising layout. On the ground floor, there is a multifunctional room with a modern kitchen unit and even a bar. You also have the option of creating your own living unit (e.g., for informal care/au pair/child living at home, etc.) or furnishing it as an office/practice space.
The first floor consists of a spacious living room with access to the beautiful garden and at the front is a luxury kitchen equipped with all the appliances you could wish for.
On the second floor, you will find a bedroom, a bathroom, and a spacious landing which is currently furnished as a dressing room. The third floor consists of two bedrooms with access to the roof terrace, a laundry/boiler/storage room, and a spacious landing currently furnished as a gym, but this space is also very suitable as a chill room, playroom, or study/work space.
There is an unobstructed view of greenery from the first floor. If you need more rooms, this can easily be achieved on each floor.
The sunny garden with detached storage shed and rear entrance borders directly on a beautifully landscaped and enclosed courtyard where you can sit in peace and quiet. It is also very child-friendly and provides direct access to the underground parking garage. In front of the door, you can enjoy the setting sun with a snack and a drink until late in the evening. You have your own parking space in the enclosed parking garage.
Layout:
Ground floor: entrance hall with modern floating toilet and washbasin, very spacious multifunctional room with modern kitchen unit and large storage room (connections for bathroom available), stairs in the hall to….
First floor: landing with modern floating toilet and washbasin, bright living room with underfloor heating, door to garden and modern open kitchen with cooking island with breakfast bar and various built-in appliances, stairs on landing to…
2nd floor: spacious landing currently used as a dressing room, modern floating toilet with washbasin, large bedroom, modern bathroom with bathtub, walk-in shower, and double sink, stairs to landing to….
3rd floor: spacious landing currently used as a gym but also ideal as a study, storage/boiler/laundry room with central heating boiler and washing machine connection, two bedrooms with door to roof terrace
Details:
* Living area approx. 235 m², volume approx. 801 m³, and 74 m² of private land
* Sustainable living, energy label A
* 10 solar panels (installed in 2022)
* Fully insulated
* Front equipped with triple HR+++ glass and rear with HR++ glass
* Surprising layout
* Possibility to create extra rooms
* Living room and kitchen on the 1st floor equipped with underfloor heating
* Automatic ventilation system
* Ground floor equipped with separate ventilation and heating system
* Sunny garden with back entrance
* Sunny roof terrace
* Private parking space with electric charging point in enclosed parking garage
* Unobstructed location at the front
* Unobstructed view from the 1st floor
* Excellent opportunity for informal care or home office/practice
* For layout and dimensions, see floor plans
* Delivery in consultation
Kenmerken
- Koopprijs
- € 1.098.000,-
- Plaats
- Haarlem
- Status
- Beschikbaar
- Buurt
- Natuurkundigenbuurt-oost
- Aantal kamers
- 7
- Aantal slaapkamers
- 4
- Aantal badkamers
- 1
- Woonoppervlakte
- 235 m2
- Perceel oppervlakte
- 74 m2
- Ligging
- Aan rustige weg, In woonwijk, Vrij uitzicht
- Bouwjaar
- 2017
- Isolatie
- Volledig geïsoleerd
- Type verwarming
- CV ketel, Vloerverwarming gedeeltelijk
- Onderhoud buiten
- Goed tot uitstekend
- Onderhoud binnen
- Goed tot uitstekend
- Voorzieningen
- Mechanische ventilatie, TV kabel, Glasvezel kabel, Zonnepanelen, Natuurlijke ventilatie
- Energieklasse
- A
- Soort dak
- Plat dak
- Parkeer faciliteiten
- Op afgesloten terrein
- Schuur/bergruimte
- 1
- Woning type
- Woonhuis
Plattegronden
Uitzicht op straat
Zoek de locatie
kom jij kijken?
Een bezoek vertelt het meest. Onze makelaars nemen graag de tijd voor een rustige rondleiding.
Contacteer ons nu













































