Schoterweg 1C, Haarlem
VerkochtBeschrijving
PUUR* wonen aan de Schoterweg 1C. Licht loft-appartement op toplocatie.
Op zoek naar een sfeervol appartement met karakter, licht én een vrij gevoel? Dit loft-appartement van ca. 56 m2 op de derde (bovenste) verdieping van een statig pand uit ca. 1881, gelegen aan de Schoterweg 1C, is precies wat je zoekt! Hier woon je vrij, met het groen van de Schotersingel om de hoek en alle voorzieningen op loopafstand. Ben je op zoek naar een stijlvol, licht en karaktervol appartement op een centrale locatie? Dan is dit jouw kans! Plan snel een bezichtiging en ervaar zelf de charme van dit bijzondere appartement.
Wat maakt dit appartement zo bijzonder?
– Unieke sfeer: De balken dakconstructie in het zicht geeft de ruimte een stoer en authentiek karakter. Samen met de hoge nok en het open ontwerp voel je hier direct de fijne, loftachtige sfeer.
– Licht en vrijheid: Doordat het appartement op de bovenste woonlaag ligt, heb je veel lichtinval en woon je extra vrij. Geen bovenburen, wél een heerlijk gevoel van rust en ruimte.
– Ruime leefruimte: De open indeling maakt de woning verrassend ruimtelijk. De lichte woonkamer met open keuken is de perfecte plek om te koken, leven en ontspannen. De slaapkamer is slim gesitueerd in de ruimte, en de open badkamer sluit daar stijlvol op aan.
– Goed onderhouden gebouw: Het gebouw verkeert in goede staat van onderhoud en wordt actief beheerd door een gezonde en actieve VvE. Hier woon je zorgeloos en comfortabel.
– Toplocatie in de Frans Halsbuurt: Gelegen in de stadse Frans Halsbuurt, met het plantsoen van de Schotersingel op steenworp afstand. Je loopt zo naar het centrum, het station, winkels, koffietentjes en andere voorzieningen. Alles wat je nodig hebt is dichtbij!
Goed om te weten:
* Woonoppervlakte ca. 56 m²
* Loftachtig appartement met zichtbare balkenconstructie
* Licht en vrij wonen op de bovenste verdieping
* Ruime leefruimte met open keuken
* Eventueel mogelijkheid om buitenruimte te creëren (toestemming VvE reeds aanwezig)
* Goed onderhouden gebouw met actieve en gezonde VvE
* Servicekosten € 62,50 p/mnd (€ 750,- p/jr)
* Voorgevel en zijgevel gebouw gerenoveerd in 2021/2022
* Toplocatie in de Frans Halsbuurt op loopafstand van het station en de binnenstad
* Aanvaarding in overleg
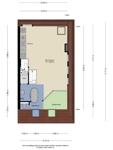
Indeling
Begane grond: gemeenschappelijke entree/trappenhuis.
2e Verdieping: entree appartement, trapopgang.
3e Verdieping: ruime en open living met visgraat parketvloer, zichtbare spantconstructie, vaste trap naar entresol (slaapruimte / bergruimte) en open keuken. Aan de achterzijde ligt de slaapkamer met dakraam en open badkamer met vrijstaand ligbad, inloopdouche en wastafel. Er is een separate toiletruimte en kastruimte met cv-ketel en aansluiting voor wasmachine.
*ENGLISH TEXT*
PUUR* living at Schoterweg 1C. Light loft apartment in a prime location.
Looking for an atmospheric apartment with character, light and a free feeling? This loft apartment of approx. 56 m2 on the third (top) floor of a stately building from approx. 1881, located at Schoterweg 1C, is exactly what you are looking for! Here you live freely, with the greenery of the Schotersingel around the corner and all amenities within walking distance. Are you looking for a stylish, light and characterful apartment in a central location? Then this is your chance! Plan a viewing quickly and experience the charm of this special apartment for yourself.
What makes this apartment so special?
– Unique atmosphere: The exposed beam roof construction gives the space a tough and authentic character. Together with the high ridge and the open design, you immediately feel the pleasant, loft-like atmosphere here.
– Light and freedom: Because the apartment is on the top floor, you have a lot of light and you live extra freely. No upstairs neighbors, but a wonderful feeling of peace and space.
– Spacious living space: The open layout makes the house surprisingly spacious. The bright living room with open kitchen is the perfect place to cook, live and relax. The bedroom is cleverly situated in the space, and the open bathroom fits in stylishly.
– Well-maintained building: The building is in good condition and is actively managed by a healthy and active VvE. Here you live carefree and comfortably.
– Top location in the Frans Halsbuurt: Located in the urban Frans Halsbuurt, with the Schotersingel park a stone’s throw away. You can walk to the center, the station, shops, coffee shops and other amenities. Everything you need is close by!
Good to know:
* Living area approx. 56 m²
* Loft-like apartment with visible beam construction
* Light and free living on the top floor
* Spacious living space with open kitchen
* Possibility to create outdoor space (permission from VvE already available)
* Well-maintained building with active and healthy VvE
* Service costs € 62.50 per month (€ 750 per year)
* Front and side facade of building renovated in 2021/2022
* Prime location in the Frans Halsbuurt within walking distance of the station and the city center
* Acceptance in consultation
Layout
Ground floor: communal entrance/stairwell.
2nd Floor: apartment entrance, staircase.
3rd Floor: spacious and open living room with herringbone parquet floor, visible truss construction, fixed staircase to mezzanine (sleeping area/storage space) and open kitchen. At the rear is the bedroom with skylight and open bathroom with freestanding bath, walk-in shower and sink. There is a separate toilet and closet space with central heating boiler and connection for washing machine.
Algemeen
- Plaats
- Haarlem
- Status
- Verkocht
- Buurt
- Frans Halsbuurt
- Aantal kamers
- 2
- Aantal slaapkamers
- 1
- Aantal badkamers
- 1
- Woonoppervlakte
- 56 m2
- Ligging
- In centrum, In woonwijk, Vrij uitzicht
- Bouwjaar
- 1881
- Isolatie
- Dakisolatie, Dubbelglas
- Type verwarming
- CV ketel
- Onderhoud buiten
- Goed
- Onderhoud binnen
- Redelijk tot goed
- Voorzieningen
- Dakraam, Glasvezel kabel
- Energieklasse
- F
- Soort dak
- Mansardedak
- Parkeer faciliteiten
- Betaald parkeren, Parkeervergunningen
- Woning type
- Appartement






























