van Speijkstraat 103, Zandvoort
VerkochtBeschrijving
“Upside down” raak je van deze leuke maisonnette
Op steenworp afstand van de zee en het strand ligt deze bijzonder ruime maisonnette met een woonoppervlakte van ca. 140 m², met de kenmerken van een woonhuis. Er is een zonnig dakterras aan de achterzijde op het oosten en een zonnig terras aan de voorzijde op het westen. Ook heb je de beschikking over een eigen parkeerplaats en een berging in de onderbouw.
Op de parterre vind je een ruime en zeer lichte woonkamer met een Frans balkon en een leuk zicht over de achtergelegen woonwijk. Verder vind je op de parterre een moderne open keuken en een eetkamer met openslaande deuren naar het zonnige terras aan de voorzijde – een heerlijke plek om te genieten van de middag- en avondzon. Door de schuifdeuren tussen de keuken en de eetkamer heb je de mogelijkheid dit tot een geheel te maken of ieder een afzonderlijke functie te geven.
Het verrassende van deze maisonnette is dat de slaapkamers en badkamers in de lager gelegen verdiepingen te vinden zijn. De woning beschikt over 4 slaapkamers en 2 badkamers, verdeeld over 2 verdiepingen. Op de onderste verdieping heb je vanuit de twee slaapkamers via openslaande deuren toegang tot het grote zonnige dakterras aan de achterzijde.
De ligging van deze woning is perfect: zodra je de deur uitstapt, sta je nagenoeg al op het strand of zit je op het terras van één van de vele gezellige strandtenten. Ook ben je zo in de duinen of in het centrum van Zandvoort met diverse boetieks, restaurants, uitgaansgelegenheden en supermarkten. Het NS-station met directe verbinding naar Haarlem/Amsterdam en diverse busverbindingen ligt op ca. 2 minuten lopen. Daarnaast vind je in de omgeving vele mooie natuurgebieden, scholen, kinderopvang, sportfaciliteiten, het F1-circuit en uitvalswegen.
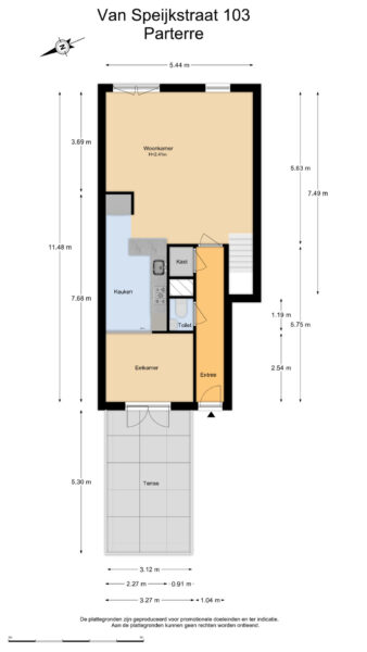
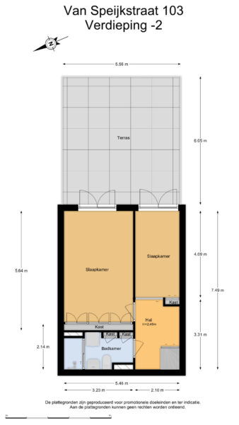
Indeling:
Parterre: entree, hal met garderobekast en modern zwevend toilet met fontein, zeer lichte woonkamer met vrij uitzicht en openslaande deuren naar frans balkon, moderne open keuken met diverse inbouwapparatuur, eetkamer met schuifdeuren naar keuken en openslaande deuren naar zonnig terras aan voorzijde, via woonkamer trap naar….
Verdieping -1: overloop, twee slaapkamers waarvan 1 met openslaande deuren naar frans balkon, moderne en zeer royale badkamer (2023) voorzien van grote inloopdouche met handdouche en rainshower, wastafelmeubel en zwevend toilet, via overloop trap naar…
Verdieping -2: overloop, royale slaapkamer met vaste kastenwand en openslaande deuren naar dakterras, slaapkamer met openslaande deuren naar dakterras, 2e moderne badkamer met douche, zwevend toilet, vaste kast, wasmachine aansluiting en handdoekradiator
Bijzonderheden:
* Woonoppervlakte ca. 140 m2 en inhoud ca. 462 m3
* Parterre voorzien van eiken houten vloer
* Verdiepingen voorzien van laminaatvloer
* Terras aan voorzijde gelegen op het westen
* Dakterras aan achterzijde gelegen op het oosten
* Parterre voorzijde voorzien van elektrische zonwering
* Royaal terras aan achterzijde
* Eigen parkeerplaats en berging in afgesloten parkeergarage
* Servicekosten thans € 285,22 per maand
* Voor indeling en maatvoering zie plattegronden
* Oplevering in overleg
Algemeen
- Plaats
- Zandvoort
- Status
- Verkocht
- Buurt
- Stations omgeving
- Aantal kamers
- 6
- Aantal slaapkamers
- 4
- Aantal badkamers
- 2
- Woonoppervlakte
- 140 m2
- Ligging
- In woonwijk
- Bouwjaar
- 2000
- Isolatie
- Volledig geïsoleerd
- Type verwarming
- Blokverwarming
- Onderhoud buiten
- Goed
- Onderhoud binnen
- Goed
- Voorzieningen
- Mechanische ventilatie, TV kabel, Buitenzonwering, Frans balkon
- Energieklasse
- A
- Soort dak
- Plat dak
- Parkeer faciliteiten
- Parkeergarage, Parkeervergunningen
- Woning type
- Appartement












































