Wagenweg 164B, Haarlem
VerkochtBeschrijving
PUUR* wonen: 4 kamer appartement met vrij uitzicht op het monumentale wandel bos “De Haarlemmerhout”. Volledig geïsoleerd (A label) appartement met woonkamer, Siematic keuken met diverse inbouw apparatuur en een fantastische lichte tuingerichte zitkamer met aparte werk/kantoorhoek op de begane grond. Op de eerste verdieping 2 ruime slaapkamers en een badkamer. Het appartement heeft naast een voortuin een ruim 14 meter diepe achtertuin op het westen met ochtend/middag en avond zon ! In de afgesloten parkeergarage 2 privé parkeerplaatsen, een gezamenlijke fietsenberging en aparte berging. Het appartement maakt deel uit van een in 2006 gerealiseerd kleinschalig appartementencomplex.
Goed om te weten
* De gehele woning heeft een verzorgde afwerking
* De begane grond is voorzien van eiken vloerdelen
* Schilderwerk voorzijde 2024, achterzijde 2022
* Servicekosten € 404,- per maand
* Bouwjaar 2007
* Woonoppervlakte ca. 143 m2
* Direct gelegen tegenover wandelbos de Haarlemmerhout
* Diepe zonnige achtertuin
* Twee privé parkeerplaatsen in de ondergelegen parkeergarage
* Eenvoudig te wijzigen in ‘levensloopbestendig’ appartement
* Oplevering in overleg
Locatie
Aan de rand van het gewilde Bosch en Vaart kwartier dat geliefd is om zijn rustige, gezellige sfeer met veel groen en op loop/fietsafstand van het levendige stadscentrum. Scholen, kinderopvang, tennisbaan, winkels, ateliers, eetcafés en restaurants zoals Cafe Colette, Cafe Mogador, en restaurant ML maar ook uitgaansgelegenheden en musea, zoals het Teylers Museum, de Toneelschuur, de Stadsschouwburg en de Philharmonie bevinden zich op loopafstand. De bossen, de duinen en de stranden van Bloemendaal en Zandvoort zijn met de fiets bereikbaar. Het huis ligt gunstig ten opzichte van de uitvalswegen naar Amsterdam, Schiphol, Utrecht en Den Haag.
Indeling
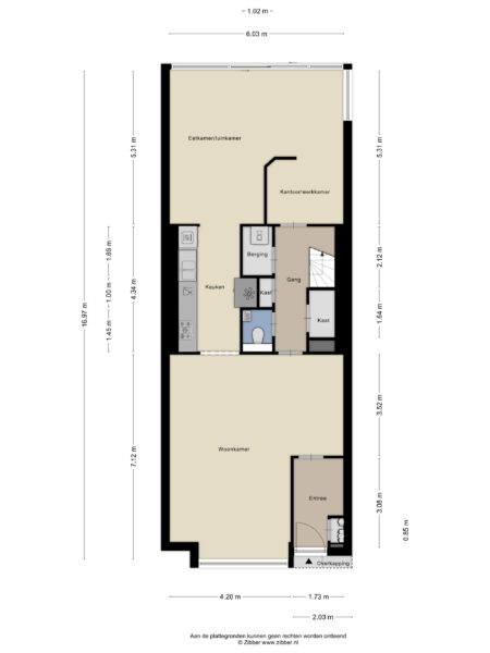
Begane grond: privé entree, hal met garderobe, geheel voorzien van eiken vloerdelen, woonkamer aan de voorzijde en een zit/eetkamer aan de achterzijde. Een half open Siematic keuken met diverse inbouwapparatuur de tuin/zitkamer aan de achterzijde volledig glazen schuifpui met een fantastische groene tuin op het zuidwesten. Gang met vaste kast met wasmachine en droger aansluiting, apart toilet met fontein en vaste kast met cv-opstelling.
1e Verdieping: Overloop, twee ruime slaapkamers, ieder met een schuifpui en een Frans balkon. Badkamer met ligbad, aparte douche, 2e toilet, vaste wastafel.
Parkeergarage (ondergelegen) met elektrische garage deur (afstandsbediening) 2 ruime eigen privé parkeerplaatsen, aparte berging en lift naar appartement.
Zie de plattegronden voor de indeling en afmetingen. De brochure is te downloaden via onze eigen website.
*ENGLISH*
PUUR* living: 4-room apartment with unobstructed views of the monumental walking forest ‘De Haarlemmerhout’. Fully insulated (A label) apartment with living room, Siematic kitchen with various built-in appliances and a fantastic light garden-facing sitting room with separate work/office corner on the ground floor. On the first floor, there are 2 spacious bedrooms and a bathroom. In addition to a front garden, the apartment has a spacious 14-metre-deep west-facing back garden with morning/afternoon and evening sun! In the enclosed parking garage, there are two private parking spaces, a shared bicycle storage room and a separate storage room. The apartment is part of a small-scale apartment complex built in 2006.
Good to know
* The entire property has a neat finish
* The ground floor has oak floorboards
* Painting of the front in 2024, rear in 2022
* Service costs €404 per month
* Year of construction 2007
* Living area approx. 143 m2
* Located directly opposite the Haarlemmerhout walking forest
* Deep, sunny back garden
* Two private parking spaces in the underground car park
* Easy to convert into a “lifetime” apartment
* Delivery in consultation
Location
On the edge of the sought-after Bosch en Vaart neighbourhood, which is loved for its peaceful, cosy atmosphere with lots of greenery and within walking/cycling distance of the lively city centre. Schools, childcare facilities, tennis courts, shops, studios, cafés and restaurants such as Cafe Colette, Cafe Mogador, and restaurant ML, as well as entertainment venues and museums such as the Teylers Museum, the Toneelschuur, the Stadsschouwburg and the Philharmonie are all within walking distance. The forests, dunes and beaches of Bloemendaal and Zandvoort are accessible by bike. The house is conveniently located for the motorways to Amsterdam, Schiphol, Utrecht and The Hague.
Layout
Ground floor: private entrance, hall with cloakroom, fully fitted with oak floorboards, living room at the front and a sitting/dining room at the rear. A semi-open Siematic kitchen with various built-in appliances, the garden/sitting room at the rear with fully glazed sliding doors and a fantastic green garden facing southwest. Hallway with built-in cupboard with washing machine and dryer connections, separate toilet with washbasin and built-in cupboard with central heating system.
First floor: Landing, two spacious bedrooms, each with sliding doors and a French balcony. Bathroom with bathtub, separate shower, second toilet, washbasin.
Parking garage (below) with electric garage door (remote control), 2 spacious private parking spaces, separate storage room and lift to the apartment.
See the floor plans for the layout and dimensions. The brochure can be downloaded from our website.
Algemeen
- Plaats
- Haarlem
- Status
- Verkocht
- Buurt
- Bosch en Vaart
- Aantal kamers
- 4
- Aantal slaapkamers
- 2
- Aantal badkamers
- 1
- Woonoppervlakte
- 143 m2
- Ligging
- Aan bosrand, In woonwijk, Vrij uitzicht, Open ligging
- Bouwjaar
- 2006
- Isolatie
- Dakisolatie, Muurisolatie, Vloerisolatie, HR glas
- Type verwarming
- CV ketel
- Onderhoud buiten
- Uitstekend
- Onderhoud binnen
- Uitstekend
- Voorzieningen
- Mechanische ventilatie, Natuurlijke ventilatie
- Energieklasse
- A
- Soort dak
- Samengesteld dak
- Parkeer faciliteiten
- Openbaar parkeren, Parkeergarage
- Schuur/bergruimte
- 1
- Woning type
- Appartement














































