Westerhoutpark 20, Haarlem
BeschikbaarPrijs: € 3.500.000,-
Beschrijving
PUUR* woongeluk in deze unieke royale 2 onder een kap stadsvilla aan het Westerhoutpark 20.
Een zeldzame combinatie van XXL woonruimte, karakter, grote tuin, weids uitzicht en rustige ligging in de geliefde Bosch en Vaartbuurt aan de rand van de Haarlemmerhout. Met maar liefst zeven volwaardige grote slaap/werkkamers, 2 luxe badkamers en lift verdeeld over circa 390 m² netto en circa 490 m² bruto woonoppervlak, op eigen perceel en gebouwd in 1911, is dit een woning die allure en leefruimte moeiteloos verenigt. Met nog vele authentieke details zoals hoge ornamenten plafonds, schouwen en glas & lood gecombineerd met een gerenoveerde luxe afwerking, geven deze woning veel sfeer. Het huis heeft aan de voorkant een discrete statige en authentiek uitstraling, maar bij binnenkomst word je verrast door de majestueuze hal, imposante trappenpartij en vooral de enorme breedte van het huis aan de achterkant.
Dankzij de wijd uitlopende tuin en de ligging in de buitenbocht van het Westerhoutpark ervaar je rust die voelt als vrijstaand, dus privacy en volop zon – van vroeg in de ochtend tot in de avond. Door de prachtige zeer brede tuin en de weelderige omliggende percelen is het een groene oase waar je van het vroege voorjaar tot ver in het najaar omringd wordt door bloemende kersenbomen, kweeperen, vijgen en pruimenbomen. Door het landelijke gevoel vergeet je hier onmiddellijk dat je zo dicht bij het centrum van Haarlem zit. Vanuit de tuin kijk je uit over de historische buitenhuizen zoals “Groen en Hout”, “Houtrust” en de orangerie van het voormalige landgoed / hofstede “Westerhout”. Tevens ervaar je de rust van de Haarlemmerhout dat zichtbaar is vanaf de tuin. Door de grote hal en doorkijkglas in de plafonds worden alle vertrekken en etages zeer functioneel met elkaar verbonden. Hierdoor blijft iedereen goed met elkaar verbonden in dit voortreffelijke familiehuis ondanks de vele ruimtes.
Indeling:
Kelder:
Via een vaste trap is de grote kelder bereikbaar. Deze droge ruimte is op stahoogte en ideaal geschikt voor wijn en als berging of opslag.
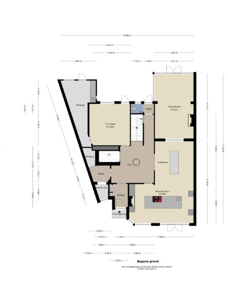
Begane grond:
Via de voortuin en entree aan de voorzijde kom je binnen in een majestueuze ruime hal met aparte garderoberuimte, lift en via cilinder glasplaten op elke verdieping doorkijk naar het originele glas-in-lood daklicht in het hoofddak en toegang tot de verschillende woonvertrekken. Vanuit de hal is er toegang tot een werkkamer/chill/televisiekamer aan de achterkant van de woning, evenals tot een separaat toilet. De hal leidt verder naar de luxe leef en woonkeuken aan de voorzijde dat het hart is van het huis met Lodder keuken inclusief zeer groot eiland met diverse Gaggenau apparatuur, Quooker, professionele Gutmann afzuigkap, gashaard, maatkasten en Belgisch hardstenen vloer. De keuken heeft ook grote openslaande deuren naar de tuin aan de voorkant. Vanuit de keuken kom je direct in de statige eetkamer met parketvloer en via glas-in-lood schuifdeuren naar de kamer-en-suite zitkamer en serre met Franse natuurstenen schouw inclusief brabus inbouw openhaard. De serre heeft openslaande deuren naar de zonnige uitwaaiende tuin op het zuidoosten met achtergelegen (afgesloten) achterom. De tuin heeft ook nog een grote stenen verwarmde schuur met electra, warm water, koelkast en werkbank die tevens direct toegang heeft tot de chill/televisiekamer.
Eerste verdieping:
De eerste verdieping is bereikbaar via het prachtige trappenhuis met originele glas in loodramen. De royale overloop met toilet en geeft toegang tot meerdere slaapkamers. Aan de achterzijde twee ruime slaapkamers, waarvan een hoofdslaapkamer met dakterras, Franse natuurstenen schouw en inloop kledingkast, aan de voorzijde een derde riante slaapkamer met inpandig balkon en inbouw boekenkast. De verdieping beschikt verder over een luxe badkamer voorzien van ligbad, dubbele douchestraat, natuurstenen dubbele wastafel en vaste kastenwand. Grenzend aan de badkamer bevindt zich een separate grote wasruimte met hierachter de cv opstelling.
Tweede verdieping:
Via de trap of lift bereik je de tweede verdieping. De royale overloop met toilet en waskoker geeft toegang tot drie slaapkamers. De slaapkamer aan de voorkant is zeer riant en heeft een inbouw kledingkast. De tweede slaapkamer heeft een fraaie schouw, inbouw kledingkast en magnifiek uitzicht over de verschillende percelen van de buitenplaatsen. De derde slaapkamer is momenteel een gym en heeft nog een extra kastruimte naast het huis, dit was vroeger de luchtbrug naar het andere pand toen het nog kantoren waren. De verdieping beschikt over een tweede badkamer met inloopdouche, ligbad, wastafel, en inpandige bergruimte. Hiernaast is er nog een grote opslagruimte en machinekamer voor de lift.
De woning ligt aan een van de mooiste en meest exclusieve straten van Bosch en Vaart / Florapark, een groene en rustige woonomgeving met vooral een fraaie combinatie van statige, historische en ook charmante huizen, terwijl het een gezellige levendige straat is. De Bos & Vaartschool is via het mandelig pad in 3 minuten te bereiken zonder een drukke straat over te steken. Binnen handbereik vind je supermarkten, buurtwinkels en horecagelegenheden; tevens is het oudste stadsbos van Nederland, De Haarlemmerhout direct om de hoek, ideaal voor een ochtendwandeling of sportieve start. Openbaar vervoer en het treinstation zijn bereikbaar, en de ligging maakt dat steden als Amsterdam, Schiphol en Den Haag zeer goed te bereiken zijn. Tegelijk is het historische centrum van Haarlem lopend bereikbaar. De straat zelf is zeer rustig met alleen bestemmingsverkeer en altijd plek om te parkeren.
Goed om te weten:
* Fundering op staal (gemetseld)
* Buitenbocht van het Westerhoutpark
* Voelt als vrijstaand door de uitwaaiende achtertuin
* 388,6 m2 Netto en 490,6 m2 Bruto (NEN2580) woonoppervlak door o.a. de imposante hal, royale trappenpartij, riante overlopen plus de 6 persoons lift
* Perceel van 511 m2 eigen grond plus extra 91m2 mandelig perceel dat wordt gebruikt als brede achterom/pad dat is afgesloten met een poort, maar toegankelijk voor de bewoners. De tuinman kan er naar binnen rijden
* Lodder keuken en eiland met diverse Gaggenau inbouw apparatuur
* Vrij uitzicht achterzijde op historische buitenplaatsen / orangerie
* Lift voor 6 personen / 500 kilo
* Vloerverwarming en mechanische afzuiging in de keuken en beide badkamers
* Remeha Quinta Ace CV + Remeha 200 liter Aquacella waterboiler
* 10 zonnepanelen
* Eigen laadpaal
* Parkeren met vergunning, zone C west, hierdoor altijd plek in de straat
* Tuin beschikt over een beregeningsinstallatie en een elektrische grasmaaier
* Uitstekend onderhouden / schilderwerk buiten 2024-2025
* Grote Markt, station Haarlem / Heemstede en Strandtenten op fietsafstand
* Bos en Vaartschool in 3 minuten lopen via achterom
* Internationale school 5 minuten fietsen
* Oplevering in overleg
* Het huis ligt 1.10 tot 1.25 meter boven N.A.P. en onmiddellijk op het duinzand van de historische strandwal. De Noordzee begon eeuwen geleden aan de andere kant van de Wagenweg. Dichter bij de Leidsevaart is dit bijvoorbeeld tot 2.60 meter onder N.A.P.
Historie:
Rond 1560 is Westerhout voor het eerst zichtbaar op de oude kaarten. Toen het een volwaardige Hofstede / Buitenplaats was, rijkte het van Wagenweg 35 (smederij Felix) tot aan Wagenweg 59 (naast Spruitenbosch). Het landgoed grensde aan de achterkant aan de “Hout” en had een weelderige parktuin inclusief vijvers en bruggen wat als een toonbeeld van particuliere tuinkunst werd gezien. De bewoners konden in die tijd nog tot de duinen van Zandvoort kijken. Het werd in 1905 verkocht toen de eigenaren naar Bloemendaal verhuisden en hierna ontstond Westerhoutpark, wat toen nog onder Heemstede viel. Vanuit de tuin is de historie van deze vervlogen tijd nog goed zichtbaar met de Orangerie van hofstede “Westerhout” en de buitenplaatsen “Groen en Hout” en “Houtrust”. De villa “Houtrust” aan de Koningin Wilhelminalaan 16 was bijna 75 jaar verbonden met Westerhoutpark 18-20. Eerst als zorginstelling en later als kantoor.
*ENGLISH BELOW*
PUUR* living bliss in this unique, spacious semi-detached city villa at Westerhoutpark 20.
A rare combination of XXL living space, character, large garden, panoramic views, and a quiet location in the beloved Bosch en Vaartbuurt neighborhood on the edge of the Haarlemmerhout. With no fewer than seven full-size bedrooms/studies, two luxurious bathrooms, and an elevator spread over approximately 390 m² of net and approximately 490 m² of gross living space, on its own plot and built in 1911, this is a home that effortlessly combines allure and living space. With many authentic details such as high ornamental ceilings, fireplaces, and stained glass combined with a renovated luxury finish, this home exudes atmosphere. The front of the house has a discreet, stately, and authentic appearance, but upon entering, you will be surprised by the majestic hall, imposing staircase, and especially the enormous width of the house at the rear.
Thanks to the expansive garden and its location on the outer bend of Westerhoutpark, you will experience a sense of tranquility that feels like you are in a detached home, offering privacy and plenty of sunshine from early morning until evening. The beautiful, very wide garden and the lush surrounding plots make it a green oasis where you are surrounded by flowering cherry, quince, fig, and plum trees from early spring until well into autumn. The rural feel makes you immediately forget that you are so close to the center of Haarlem. From the garden, you look out over historic country houses such as “Groen en Hout,” “Houtrust,” and the orangery of the former estate/farmstead “Westerhout.” You can also enjoy the tranquility of the Haarlemmerhout, which is visible from the garden. The large hall and glass panels in the ceilings connect all rooms and floors in a very functional way. This keeps everyone connected in this exquisite family home, despite the many rooms.
Layout:
Basement:
The large basement is accessible via a fixed staircase. This dry space is at standing height and ideal for wine and as a storage room.
Ground floor:
Through the front garden and entrance at the front, you enter a majestic spacious hall with separate cloakroom, elevator, and through cylinder glass plates on each floor, a view of the original stained glass skylight in the main roof and access to the various living areas. From the hall, there is access to a study/chill/television room at the rear of the house, as well as to a separate toilet. The hall leads further to the luxurious living room and kitchen at the front, which is the heart of the house, with a Lodder kitchen including a very large island with various Gaggenau appliances, Quooker, professional Gutmann extractor hood, gas fireplace, custom cabinets, and Belgian bluestone flooring. The kitchen also has large French doors to the front garden. From the kitchen, you enter the stately dining room with parquet flooring and, through stained glass sliding doors, the en-suite sitting room and conservatory with French natural stone fireplace, including a built-in Brabus fireplace. The conservatory has French doors to the sunny southeast-facing garden with a (enclosed) back entrance. The garden also has a large heated stone shed with electricity, hot water, refrigerator, and workbench, which also has direct access to the chill/television room.
First floor:
The first floor is accessible via the beautiful staircase with original stained glass windows. The spacious landing with toilet provides access to several bedrooms. At the rear are two spacious bedrooms, one of which is the master bedroom with a roof terrace, French natural stone fireplace, and walk-in closet. At the front is a third spacious bedroom with an indoor balcony and built-in bookcase. The floor also has a luxurious bathroom with a bathtub, double shower, natural stone double sink, and built-in closet. Adjacent to the bathroom is a separate large laundry room with the central heating system behind it.
Second floor:
The second floor can be reached via the stairs or elevator. The spacious landing with toilet and laundry chute provides access to three bedrooms. The bedroom at the front is very spacious and has a built-in wardrobe. The second bedroom has a beautiful fireplace, built-in wardrobe, and magnificent views over the various plots of the country estates. The third bedroom is currently a gym and has additional storage space next to the house, which used to be the air bridge to the other building when it was still offices. The floor has a second bathroom with a walk-in shower, bathtub, sink, and indoor storage space. Next to this is a large storage room and machine room for the elevator.
The house is located on one of the most beautiful and exclusive streets in Bosch en Vaart / Florapark, a green and quiet residential area with a beautiful combination of stately, historic, and charming houses, while still being a lively and pleasant street. The Bos & Vaartschool can be reached in 3 minutes via the shared path without crossing a busy street. Supermarkets, local shops, and restaurants are within easy reach; the oldest city forest in the Netherlands, De Haarlemmerhout, is also just around the corner, ideal for a morning walk or a sporty start to the day. Public transportation and the train station are accessible, and the location makes cities such as Amsterdam, Schiphol, and The Hague very easy to reach. At the same time, the historic center of Haarlem is within walking distance. The street itself is very quiet with only local traffic and always plenty of parking.
Good to know:
* Steel foundation (brickwork)
* Outside bend of Westerhoutpark
* Feels like a detached house due to the open-air backyard
* 388.6 m² net and 490.6 m² gross (NEN2580) living space due to, among other things, the impressive hall, spacious staircase, generous landings, and the 6-person elevator
* Plot of 511 m² of private land plus an additional 91 m² of shared land used as a wide back entrance/path that is closed off with a gate but accessible to residents. The gardener can drive in
* Lodder kitchen and island with various Gaggenau built-in appliances
* Unobstructed view at the rear of historic country estates/orangery
* Elevator for 6 people / 500 kg
* Underfloor heating and mechanical ventilation in the kitchen and both bathrooms
* Remeha Quinta Ace central heating + Remeha 200-liter Aquacella water boiler
* 10 solar panels
* Private charging station
* Parking with permit, zone C west, so there is always a spot on the street
* Garden has a sprinkler system and an electric lawn mower
* Excellent maintenance / exterior painting 2024-2025
* Grote Markt, Haarlem / Heemstede station and beach bars within cycling distance
* Bos en Vaartschool 3 minutes’ walk via the back entrance
* International school 5 minutes by bike
* Delivery in consultation
Kenmerken
- Koopprijs
- € 3.500.000,-
- Plaats
- Haarlem
- Status
- Beschikbaar
- Buurt
- Florapark
- Aantal kamers
- 10
- Aantal slaapkamers
- 7
- Aantal badkamers
- 2
- Woonoppervlakte
- 389 m2
- Perceel oppervlakte
- 602 m2
- Ligging
- Aan bosrand, Aan park, Aan rustige weg, In woonwijk, Beschutte ligging, Open ligging
- Bouwjaar
- 1911
- Isolatie
- Grotendeels dubbelglas
- Type verwarming
- CV ketel
- Onderhoud buiten
- Uitstekend
- Onderhoud binnen
- Uitstekend
- Voorzieningen
- Mechanische ventilatie, TV kabel, Buitenzonwering, Lift, Zonnepanelen, Natuurlijke ventilatie
- Energieklasse
- C
- Soort dak
- Samengesteld dak
- Parkeer faciliteiten
- Betaald parkeren, Parkeervergunningen
- Schuur/bergruimte
- 1
- Woning type
- Woonhuis
Plattegronden
Uitzicht op straat
Zoek de locatie
kom jij kijken?
Een bezoek vertelt het meest. Onze makelaars nemen graag de tijd voor een rustige rondleiding.
Contacteer ons nu







































































