Eendenkooistraat 2, Haarlem
BeschikbaarPrijs: € 995.000,-
Beschrijving
PUUR* Wonen in dit ruim opgezette (ca 200m²) en lichte hoekwoning aan het groene Engelandpark. Deze riante, door de bekende Nederlandse architect Herman Hertzberger ontworpen ‘Van Lieshout Villa’ ligt in de groene wijk Schoolenaer op steenworp afstand van de oevers van het Spaarne. Via een pontje ben je zo met de fiets in het Centrum van Haarlem. De energiezuinige (label A+++) huis beschikt over een zeer ruime woonkamer, 3 slaapkamers en een stijlvolle tuin op het zuiden met achterom. In de parkeergarage op de begane grond zijn twee eigen parkeerplekken.
De ligging tussen het Spaarne en het groen van het Engelandpark is bijzonder, sfeervol en rustig. Via de landelijke Noord-Schalkwijker weg ben je in no-time in het Centrum van Haarlem. De nieuwe hotspot van Haarlem: De Watermeterfabriek is op loopafstand. Diverse sportverenigingen en winkels zijn goed bereikbaar, evenals het OV en uitvalswegen.
Goed om te weten:
* 198 m² woonoppervlakte
* Hoekwoning met ramen in zijgevel met uitzicht op karakteristiek huis met hooiberg
* Het huis heeft een bijzondere lichtinval door de diverse vides
* Bouwjaar 2006
* Energielabel A+++
* Gedetailleerd afgewerkt met o.a. hardstenen kozijnen door het hele huis
* Warmtepomp
* 8 Zonnepanelen
* Twee eigen parkeerplaatsen in gemeenschappelijke parkeergarage
* Servicekosten:€ 132 per maand
* Fraai aangelegde tuin op het zuiden met achterom
* Prachtig groene omgeving
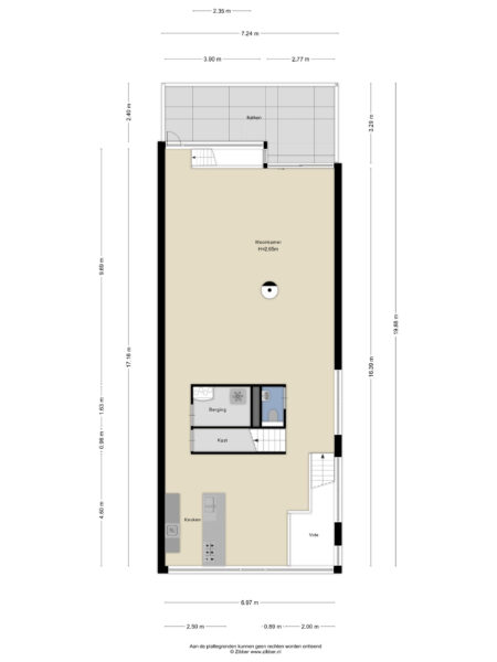
Indeling:
Begane grond: parkeerplaatsen en berging in afgesloten parkeergarage; via garage ook toegang tot de woning.
Voordeur, hal met meterkast en, deur naar parkeer garage. Aan de tuinzijde is een prachtige tuinkamer met pantry voorzien van koelkast, roestvrij staal blad en gootsteen. De grote schuifpui geeft toegang tot de tuin op het zuiden met een achterom.
Eerste verdieping: Spectaculaire entree met hangende kachel. Riante woonkamer met schuifpui naar het grote terras op het zuiden, trap naar tuinkamer op begane grond. Een moderne, ruime leefkeuken met diverse inbouwapparatuur. Door de grote vide en het vele glas is de ruimte licht. De toilet en fontein bergkast onder de trap, ruime berging met warmtepomp en ventilatiesysteem.
Tweede verdieping: overloop met apart toilet, ruime slaapkamer aan voorzijde met vaste kast, badkamer met inloopdouche en wastafelmeubel, via tussenkamer met royale inloopkast toegang tot de slaapkamer aan de achterzijde met toegang tot balkon.
*ENGLISH BELOW*
PUUR* Living in this spacious (approx. 200 m²) and bright corner home on the green Engelandpark. This spacious “Van Lieshout Villa,” designed by renowned Dutch architect Herman Hertzberger, is located in the green Schoolenaer neighborhood, just a stone’s throw from the banks of the Spaarne River. A short ferry ride takes you by bike to the center of Haarlem in no time. The energy-efficient (A+++ rating) home features a very spacious living room, 3 bedrooms, and a stylish south-facing garden with rear access. There are two private parking spaces in the ground-floor parking garage.
The location between the Spaarne River and the greenery of Engelandpark is unique, charming, and peaceful. Via the rural Noord-Schalkwijkerweg, you can reach the center of Haarlem in no time. Haarlem’s new hotspot, De Watermeterfabriek, is within walking distance. Various sports clubs and shops are easily accessible, as are public transportation and major roads.
Good to know:
* 198 m² of living space
* Corner house with windows on the side facade overlooking a characteristic house with a haystack
* The house enjoys exceptional natural light thanks to the various atriums
* Built in 2006
* Energy rating A+++
* Finished with attention to detail, including bluestone window frames throughout the house
* Heat pump
* 8 solar panels
* Two private parking spaces in a shared parking garage
* Service charges: €132 per month
* Beautifully landscaped south-facing garden with rear access
* Stunning green surroundings
Layout:
Ground floor: parking spaces and storage room in a secure parking garage; access to the home is also available via the garage.
Front door, entryway with utility closet and door to the parking garage. On the garden side is a beautiful garden room with a pantry equipped with a refrigerator, stainless steel countertop, and sink. The large sliding doors open onto the south-facing garden with a back entrance.
First floor: Spectacular entryway with a hanging stove. Spacious living room with sliding doors leading to the large south-facing terrace, staircase to the garden room on the ground floor. A modern, spacious kitchen with various built-in appliances. The large open space and abundant windows make the room bright. The toilet and sink are located in a storage closet under the stairs, and there is a spacious storage room with a heat pump and ventilation system.
Second floor: Landing with separate toilet, spacious bedroom at the front with built-in closet, bathroom with walk-in shower and vanity unit, access to the bedroom at the rear via a connecting room with a generous walk-in closet, which also leads to the balcony.
Kenmerken
- Koopprijs
- € 995.000,-
- Plaats
- Haarlem
- Status
- Beschikbaar
- Buurt
- Schoolenaer
- Aantal kamers
- 4
- Aantal slaapkamers
- 2
- Aantal badkamers
- 1
- Woonoppervlakte
- 198 m2
- Ligging
- Aan park, Aan rustige weg, In woonwijk, Vrij uitzicht
- Bouwjaar
- 2006
- Isolatie
- Volledig geïsoleerd
- Type verwarming
- Open haard, Warmtepomp, Warmte terugwininstallatie, Aardwarmte
- Onderhoud buiten
- Goed
- Onderhoud binnen
- Goed
- Voorzieningen
- Mechanische ventilatie, Buitenzonwering, Rookkanaal, Schuifpui, Glasvezel kabel, Zonnepanelen, Balansventilatie
- Energieklasse
- A+++
- Soort dak
- Plat dak
- Parkeer faciliteiten
- Openbaar parkeren, Parkeergarage, Op afgesloten terrein
- Woning type
- Woonhuis
Plattegronden
Uitzicht op straat
Zoek de locatie
kom jij kijken?
Een bezoek vertelt het meest. Onze makelaars nemen graag de tijd voor een rustige rondleiding.
Contacteer ons nu














































