Van der Vinnestraat 23ZW, Haarlem
VerkochtBeschrijving
PUUR* wonen aan de Van der Vinnestraat 23 zwart in Haarlem. Sfeervolle en lichte benedenwoning met zonnige tuin in de Kleverparkbuurt.
In de geliefde Kleverparkbuurt, op loopafstand van het centrum én het groen van de Bolwerken, ligt deze lichte en sfeervolle benedenwoning van ca. 93 m2. De woning is verrassend ruim, ca. 8,5 meter breed aan de achterzijde, waardoor je ook een heerlijk ruime tuin op het zuiden hebt. Groen, zonnig en met volop privacy – hier kom je echt tot rust!
Wat maakt deze woning bijzonder?
– Fijne indeling en sfeer: Een ruime woonkamer en suite met open keuken, drie extra kamers (nu twee slaapkamers en een werkkamer), en overal veel lichtinval. De woning is gebouwd rond 1913 en heeft de typische sfeerelementen die horen bij die bouwperiode; hoge plafonds, glas in lood, paneeldeuren, marmeren schouwen en suite stel. De woning is goed onderhouden en zo te betrekken.
– Zonnige tuin: De tuin op het zuiden is een oase van rust, met volop ruimte om te genieten van het buitenleven. De grote houten berging/tuinhuis (ca. 11 m²) is ideaal als opslag of voor hobby’s.
– Toplocatie: De Kleverparkbuurt is gewild en gezellig, met een prettige mix van bewoners. Gelegen in een rustige straat aan de rand van het centrum. Om de hoek bevinden zich diverse fijne buurtwinkels (oa. kaaswinkel / viswinkel en bakker) waar je mooie producten haalt en een lekkere kop koffie drinkt. Ook steek je zo over naar groene Bolwerken waar je lekker kunt lopen over de paden die slingeren langs de prachtige Schotersingel.
Kortom, een heerlijke woning op een topplek in Haarlem! Ideaal voor wie comfort, sfeer en locatie wil combineren. Plan snel een bezichtiging!
Goed om te weten
* Heerlijk lichte en sfeervolle benedenwoning
* Woonoppervlakte ca. 93 m2 (zie meetrapport)
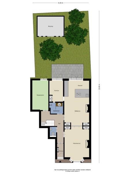
* Zie voor de indeling en maatvoering de plattegronden
* Zonnige, ruime en groene tuin op het zuiden met grote berging/tuinhuis (2022)
* Ruime woonkamer en suite met open keuken aan de achterzijde
* 3 kamers (nu 2 slaapkamers en 1 werkkamer)
* Goed onderhouden woning en makkelijk te betrekken
* PVC visgraad afwerkvloer door de hele woning (2019)
* Badkamer vervangen in 2019
* Isochips in de kruipruimte en veel dubbel glas
* Energielabel D
* Gevels gereinigd en gevoegd, in 2021 zijn deze opnieuw geïmpregneerd
* Rustige ligging nabij centrum en Bolwerken
* Alle voorzieningen op loopafstand
* Actieve en VvE; servicekosten € 40,- p/mnd
Indeling
Begane grond: entree/vestibule, gang met toiletruimte en plek voor de wasmachine onder de trap. De ruime woonkamer en suite heeft een zitkamer aan de voorzijde en een ruime leefkeuken aan de achterzijde. De keuken met kookeiland is voorzien van diverse apparatuur en via de openslaande deuren is fijne, brede tuin op het zuiden bereikbaar. De werkkamer is ook bereikbaar vanuit de keuken en heeft een deur naar de tuin. Terug in de gang, moderne badkamer met inloopdouche en wastafelmeubel. Slaapkamer met openslaande deuren naar de tuin.
1e verdieping: overloop en slaapkamer (aan de tuinzijde).
De brochure kan je downloaden via onze eigen website.
*ENGLISH*
PUUR* living at Van der Vinnestraat 23 black in Haarlem. Attractive and bright ground floor flat with sunny garden in the Kleverpark neighbourhood.
In the popular Kleverpark neighbourhood, at walking distance from the centre and the greenery of the Bolwerken, you will find this light and attractive ground floor flat of approx. 93 m2. The house is surprisingly spacious, approx. 8.5 metres wide at the rear, giving you a lovely spacious garden facing south. Green, sunny and with plenty of privacy – this is where you can really unwind!
What makes this property special?
– Fine layout and atmosphere: A spacious living room en suite with open kitchen, three extra rooms (now two bedrooms and a study), and lots of light everywhere. The house was built around 1913 and has the typical atmospheric elements associated with that construction period; high ceilings, stained glass, panel doors, marble fireplaces and suite set. The house is well maintained and is ready to move into.
– Sunny garden: The south-facing garden is an oasis of calm, with plenty of space to enjoy the outdoors. The large wooden storage/garden house (approx. 11 m²) is ideal as storage or for hobbies.
– Top location: The Kleverpark neighbourhood is sought-after and cosy, with a pleasant mix of residents. Located in a quiet street on the edge of the city centre. Around the corner are several fine local shops (including cheese shop / fishmonger and bakery) where you get nice products and a nice cup of coffee. You also cross over to green Bolwerken where you can enjoy a nice walk on the paths that meander along the beautiful Schotersingel.
In short, a lovely home in a top spot in Haarlem! Ideal for those who want to combine comfort, atmosphere and location. Plan a viewing soon!
Good to know
* Lovely bright and cosy ground floor apartment
* Living area approx. 93 m2 (see measurement report)
* See the floor plans for the layout and dimensions
* Sunny, spacious and green south-facing garden with large storage/garden house (2022)
* Spacious living room en suite with open kitchen at the rear
* 3 rooms (now 2 bedrooms and 1 study)
* Well maintained house and easy to move in
* PVC herringbone finishing floor throughout the house (2019)
* Bathroom replaced in 2019
* Isochips in the crawl space and lots of double glazing
* Energy label D
* Facades cleaned and grouted, in 2021 these are re-impregnated
* Quiet location near the city centre and the Bolwerken
* All amenities within walking distance
* Active and VvE; service costs € 40,- p/month
Layout
Ground floor: entrance/vestibule, hallway with toilet and space for washing machine under the stairs. The spacious living room en suite has a sitting room at the front and a spacious living kitchen at the back. The kitchen with cooking island is equipped with various appliances and through the French doors fine, wide south-facing garden is accessible. The study is also accessible from the kitchen and has a door to the garden. Back in the hallway, modern bathroom with walk-in shower and washbasin. Bedroom with French doors to the garden.
1st floor: landing and bedroom (on the garden side).
The brochure can be downloaded from our own website.
Algemeen
- Plaats
- Haarlem
- Status
- Verkocht
- Buurt
- Kleverpark-zuid
- Aantal kamers
- 4
- Aantal slaapkamers
- 3
- Aantal badkamers
- 1
- Woonoppervlakte
- 93 m2
- Ligging
- Aan rustige weg, In woonwijk
- Bouwjaar
- 1913
- Isolatie
- Dubbelglas
- Type verwarming
- CV ketel
- Onderhoud buiten
- Goed
- Onderhoud binnen
- Goed
- Voorzieningen
- Rookkanaal
- Energieklasse
- D
- Soort dak
- Plat dak
- Parkeer faciliteiten
- Betaald parkeren, Parkeervergunningen
- Schuur/bergruimte
- 1
- Woning type
- Appartement






































