Vinkenstraat 36, Haarlem
BeschikbaarPrijs: € 800.000,-
Beschrijving
PUUR wonen* in deze charmante en ruime hoekwoning met maar liefst circa 141 m² woonoppervlakte in een fijne kindvriendelijke buurt. De woning beschikt over zes kamers, een zonnige achtertuin op het zuidwesten en een lichte woonkamer dankzij de gunstige hoekligging en grote raampartijen. Gebouwd in 1932 en netjes afgewerkt, biedt deze woning een fijne combinatie van karakter en hedendaags wooncomfort. Met onder andere een moderne keuken uit 2020 en een ruime zolderverdieping met uitbreidingsmogelijkheden door het plaatsen van één of meerdere dakkapellen. Een ideaal familiehuis op een prettige locatie in Haarlem.
Gelegen in een geliefde en karakteristieke woonomgeving in Haarlem-Noord, kenmerkt deze buurt zich door een rustige, groene en kindvriendelijke sfeer met diverse voorzieningen op korte afstand. Supermarkten, buurtwinkels, scholen en sportfaciliteiten bevinden zich op loop- en fietsafstand, evenals het Kleverpark, het Schoterbos en andere groenvoorzieningen. Het gezellige centrum van Haarlem is binnen enkele minuten bereikbaar per fiets. Openbaar vervoer is goed geregeld met busverbindingen en nabijgelegen treinstations, en via uitvalswegen zijn steden als Amsterdam en Alkmaar eenvoudig te bereiken. De Vinkenstraat zelf is een rustige woonstraat met voornamelijk bestemmingsverkeer.
Goed om te weten:
• Hoekwoning met uitbreidingsmogelijkheden
• Gefundeerd op staal
• Vijf slaapkamers en ruime zolder
• Bouwjaar 1932
• Tuin op het zuidwesten met achterom
• Keuken uit 2020 met Bosch inbouwapparatuur
• Badkamer met douche en ligbad
• Energielabel C
• CV-ketel uit 2019
• Authentieke details zoals glas-in-lood en Terrazzo vloer
• Gelegen in een kindvriendelijke buurt
• Vrij parkeren voor de deur
• De woning is een voormalige kruidenierswinkel
Indeling
Begane grond
Via de entree heb je direct toegang tot de woonkamer. De ruime en lichte woonkamer heeft, dankzij de hoekligging en grote raampartijen, een prettige lichtinval. Via de gang heb je toegang tot het toilet en de trap naar de eerste verdieping. Aan de achterzijde is de moderne keuken gelegen, uitgerust met Bosch inbouwapparatuur en geplaatst in 2020. Vanuit de keuken met openslaande deuren is er toegang tot de zonnige achtertuin op het zuidwesten, die beschikt over een achterom.
Eerste verdieping
Via de overloop zijn meerdere slaapkamers bereikbaar, gelegen aan zowel de voor- als achterzijde van de woning. De badkamer is voorzien van een douche en ligbad. Er is een apart toilet. De kamers zijn praktisch ingedeeld, voorzien van inbouwkasten en bieden voldoende ruimte voor slapen, werken of studeren.
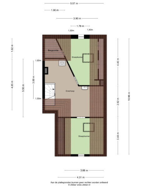
Tweede verdieping / zolder
De zolderverdieping is bereikbaar via een vaste trap en biedt een ruime open verdieping met mogelijkheden voor het realiseren van extra kamers. Door het plaatsen van één of meerdere dakkapellen aan de voorzijde en/of het optrekken van de zuidoostkant van het dak kan hier aanzienlijk extra woonoppervlakte worden gecreëerd. Tevens is er veel bergruimte aanwezig. Bekijk de plattegronden voor de exacte indeling en maatvoering. Een uitgebreide brochure is te downloaden via onze eigen website.
Bekijk de plattegronden voor de exacte indeling en maatvoering. Een uitgebreide brochure is te downloaden via onze eigen website.
*ENGLISH*
PUUR living* in this charming and spacious corner home with approximately 141 m² of living space in a lovely, child-friendly neighborhood. The home features six rooms, a sunny southwest-facing backyard, and a bright living room thanks to its favorable corner location and large windows. Built in 1932 and beautifully finished, this home offers a delightful combination of character and modern living comfort. Features include a modern kitchen from 2020 and a spacious attic floor with potential for expansion by adding one or more dormer windows. An ideal family home in a pleasant location in Haarlem.
Located in a beloved and distinctive residential area in Haarlem-Noord, this neighborhood is characterized by a quiet, green, and child-friendly atmosphere with various amenities within walking distance. Supermarkets, local shops, schools, and sports facilities are within walking and biking distance, as are Kleverpark, Schoterbos, and other green spaces. The lively center of Haarlem is just a few minutes away by bike. Public transportation is well-connected with bus routes and nearby train stations, and cities like Amsterdam and Alkmaar are easily accessible via major highways. Vinkenstraat itself is a quiet residential street with mainly local traffic.
Good to know:
• Corner house with potential for expansion
• Steel foundation
• Five bedrooms and a spacious attic
• Built in 1932
• Southwest-facing garden with rear access
• Kitchen from 2020 with Bosch built-in appliances
• Bathroom with shower and bathtub
• Energy efficiency rating C
• Boiler installed in 2019
• Authentic details such as stained glass and Terrazzo flooring
• Located in a child-friendly neighborhood
• Free parking in front of the house
• The house is a former grocery store
Layout
Ground Floor
The entrance leads directly into the living room. Thanks to its corner location and large windows, the spacious and bright living room enjoys plenty of natural light. The hallway provides access to the half-bath and the staircase to the first floor. The modern kitchen is located at the rear of the house; it is equipped with Bosch built-in appliances and was installed in 2020. From the kitchen, French doors open onto the sunny southwest-facing backyard, which has a back entrance.
First Floor
The landing provides access to several bedrooms, located on both the front and back sides of the house. The bathroom features a shower and bathtub. There is a separate toilet. The rooms are practically laid out, equipped with built-in closets, and offer ample space for sleeping, working, or studying.
Second Floor / Attic
The attic floor is accessible via a fixed staircase and offers a spacious open floor plan with potential for creating additional rooms. By installing one or more dormer windows on the front and/or raising the southeast side of the roof, significant additional living space can be created here. There is also plenty of storage space available. View the floor plans for the exact layout and dimensions. A detailed brochure is available for download on our website.
View the floor plans for the exact layout and dimensions. A detailed brochure is available for download on our website.
Kenmerken
- Koopprijs
- € 800.000,-
- Plaats
- Haarlem
- Status
- Beschikbaar
- Buurt
- Nachtegaalbuurt
- Aantal kamers
- 7
- Aantal slaapkamers
- 5
- Aantal badkamers
- 3
- Woonoppervlakte
- 141 m2
- Perceel oppervlakte
- 97 m2
- Ligging
- Aan rustige weg, In woonwijk
- Isolatie
- Dakisolatie, Muurisolatie
- Type verwarming
- CV ketel
- Onderhoud buiten
- Goed tot uitstekend
- Onderhoud binnen
- Goed
- Voorzieningen
- TV kabel, Glasvezel kabel, Natuurlijke ventilatie
- Energieklasse
- C
- Soort dak
- Zadeldak
- Parkeer faciliteiten
- Openbaar parkeren
- Woning type
- Woonhuis
Plattegronden
Uitzicht op straat
Zoek de locatie
kom jij kijken?
Een bezoek vertelt het meest. Onze makelaars nemen graag de tijd voor een rustige rondleiding.
Contacteer ons nu


















































