Cort van der Lindenstraat 36, Zandvoort
Verkocht onder voorbehoudPrijs: € 1.150.000,-
Beschrijving
Op een geweldige plek, recht tegenover de Zuidduinen en op een paar minuten lopen van het strand, staat deze halfvrijstaande gezinswoning met guesthouse en ca. 24 meter diepe tuin. Je hebt hier een waanzinnig vrij uitzicht over de duinen. Recent is de woning binnen gemoderniseerd en bestaat o.a. uit een woonkamer, een open keuken, 3 slaapkamers en 2 badkamers. Het vrijstaande bijgebouw bestaat uit 2 delen. In het voorste gedeelte vind je een guesthouse voorzien van een woonkamer met een open keuken, een slaapkamer en een badkamer. Het guesthouse heeft een eigen entree en is zeer geschikt voor de verhuur maar ook voor een au pair of een praktijk aan huis. Het aangebouwde tuinhuis is voorzien van een sauna en een moderne douchegelegenheid. Voor het huis ligt een ruime tuin en een oprit waar je makkelijk meerdere auto’s kunt parkeren. Tevens vind je in de zijtuin een fietsencarport. De ca. 24 meter diepe achtertuin heeft een zonnige ligging op het noordwesten en is aan de achterzijde extra breed. Ook heb je hier weinig inkijk. Deze tuin is voorzien van diverse terrassen en een veranda met jacuzzi.
De ligging van dit halfvrijstaande huis is echt perfect, het staat op een schitterende locatie in Zandvoort-Zuid. Zodra je de deur uit loopt, wandel je direct met je hond de duinen in en met een paar minuten sta je zo op het strand. Even een terras pakken of lekker uiteten dat kan in één van de vele leuke strandtenten of in het gezellige centrum. Binnen enkele minuten ben je overal. Ook vind je in het centrum leuke boetieks, uitgaansgelegenheden en supermarkten. Zelfs het NS-Station en diverse busverbindingen liggen dichtbij evenals sportfaciliteiten, het circuit, mooie natuurgebieden, uitvalswegen en scholen waaronder diverse basisscholen en 1 middelbare in het dorp zelf.
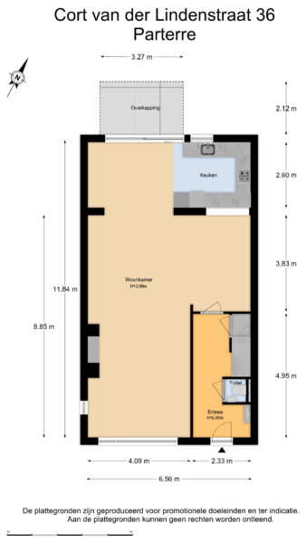
Indeling woonhuis:
Parterre: entree, hal voorzien van modern zwevend toilet met fontein en trap naar kelder, ruime woonkamer met extra zijraam, gashaard, en airco, moderne half open keuken met diverse inbouwapparatuur, kastenwand en schuifpui naar tuin,
via hal trap naar….
1e Verdieping: overloop, slaapkamer aan voorzijde met extra zijraam, slaapkamer aan voorzijde met extra zijraam, moderne badkamer voorzien van hydromassage douche met rainshower en handdouche wastafelmeubel, zwevend toilet en wasmachine aansluiting, slaapkamer aan achterzijde met airco, 2e moderne badkamer voorzien van ligbad, hydro massage douche met rainshower en handdouche, zwevend toilet, wastafelmeubel, handdoekradiotor en vloerverwarming, via overloop trap naar…..
2e Verdieping: overloop met dakraam, berg-/stookruimte met cv-ketel, slaapkamer met 2 dakkapellen
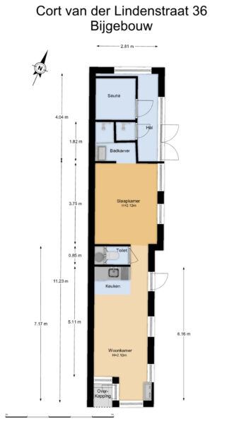
Indeling guesthouse:
entree, woonkamer met modern keukenblok en deur naar tuin, modern zwevend toilet, slaapkamer, moderne badkamer voorzien van douche met extra handdouche en wastafelmeubel
Indeling tuinhuis:
entree, hal, moderne douchegelegenheid en sauna
Bijzonderheden:
* Woonoppervlakte ca. 201 m2 incl. bijgebouw, inhoud ca. 733 m3 en 467 m2 eigen grond
* Aan achterzijde over volle breedte uitgebouwd
* 24 Zonnepanelen
* Goed geïsoleerd
* Parterre voorzien van natuurstenen vloer
* 1e, 2e verdieping en guesthouse voorzien van laminaatvloer
* Uitstekende verhuurmogelijkheden
* Vrijstaand guesthouse
* Bijgebouw voorzien van sauna
* Zonnige ca. 24 meter diepe tuin
* Eigen bron
* Royale oprit
* Vrij uitzicht over de duinen
* Markies aan voorzijde parterre
* Airco aanwezig
* Fietsencarport
* Voor indeling en maatvoering zie plattegronden
* Oplevering in overleg
Kenmerken
- Koopprijs
- € 1.150.000,-
- Plaats
- Zandvoort
- Status
- Verkocht onder voorbehoud
- Buurt
- Brederode- Gerkestraat e.o.
- Aantal kamers
- 6
- Aantal slaapkamers
- 4
- Aantal badkamers
- 4
- Woonoppervlakte
- 201 m2
- Perceel oppervlakte
- 467 m2
- Ligging
- Aan bosrand, Aan rustige weg, Vrij uitzicht
- Bouwjaar
- 1959
- Isolatie
- Dakisolatie, Muurisolatie, Vloerisolatie, Dubbelglas
- Type verwarming
- CV ketel, Vloerverwarming gedeeltelijk, Gashaard
- Onderhoud buiten
- Goed
- Onderhoud binnen
- Goed
- Voorzieningen
- TV kabel, Buitenzonwering, Airconditioning, Schuifpui, Dakraam, Sauna, Zonnepanelen
- Energieklasse
- B
- Soort dak
- Zadeldak
- Parkeer faciliteiten
- Op eigen terrein
- Schuur/bergruimte
- 1
- Woning type
- Woonhuis
Plattegronden
Uitzicht op straat
Zoek de locatie
kom jij kijken?
Een bezoek vertelt het meest. Onze makelaars nemen graag de tijd voor een rustige rondleiding.
Contacteer ons nu













































































