Distellaan 36, Aerdenhout
VerkochtBeschrijving
Midden in de populaire en kindvriendelijke Spiegelenburghkwartier staat deze sfeervolle, vrijstaande villa met vrijstaande garage. De villa krijgt door de halfronde kap een extra bijzondere uitstraling. De diverse authentieke details zorgen binnen voor extra sfeer en de vele raampartijen maken het huis lekker licht. Het huis is met veel liefde bewoond en goed onderhouden. Zodra je binnenstapt, zal je verstelt staan van de uitstekende leefruimte en de fijne indeling.
De villa bestaat op de parterre o.a. uit een woonkamer met zijcorner, een eetkamer met serre, een keuken en een bijkeuken. Op de 1e en 2e verdieping vind je in totaal 5 ruime slaapkamers en 2 badkamers. Zowel in de kelder als op de vliering is genoeg bergruimte te vinden.
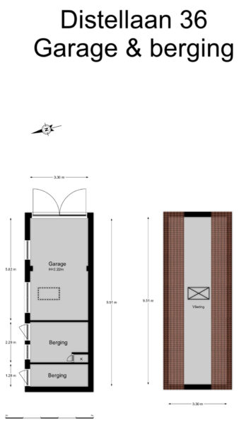
Rondom de villa ligt een zeer zonnige tuin met diverse zonnige terrassen. Aan de achterzijde in de tuin vind je een ruime oprit voor 2 auto’s met toegang naar de vrijstaande stenen garage welke voorzien is van een vliering en een dubbele berging.
Deze villa staat op de hoek van de Distellaan en de extra brede Spiegelenburghlaan welke bekend staat om zijn gezelligheid op Koningsdag, door de vele kinderen die hier wonen en spelen en het watertje met de groenstroken aan weerszijden. In de omgeving vind je het bos, de duinen en het strand, diverse scholen w.o. basis, middelbaar en hoger onderwijs op loop- en fietsafstand, diverse kwaliteitswinkels voor de dagelijkse boodschappen en het NS-Station Heemstede-Aerdenhout met directe verbindingen naar Amsterdam, Leiden en Den Haag. Maar ook een hockeyclub, golfbanen, tennisclubs, natuurgebieden w.o. de Amsterdamse Waterleidingduinen en Landgoed Elswout, uitvalswegen en de gezellige binnenstad van Haarlem liggen op korte afstand.
Indeling:
Parterre: entree, vestibule, hal voorzien van eiken houten visgraat parketvloer, toilet met fontein en toegang naar kelder met vaste kast en stahoogte, zeer ruime woonkamer en suite met zijcorner, parketvloer met bies, open haard, erker met glas-in-lood bovenramen, ornamenten plafond, vaste kasten en openslaande deuren naar tuin, ruime eetkamer met zijerker, glas-in-lood raampartij, inbouwkasten, parketvloer met bies en serre met openslaande deuren naar tuin, eenvoudige half open keuken voorzien van marmeren aanrechtblad, originele servieskast en toegang naar bijkeuken voorzien van cv-ketel, originele tegelwand en deur naar tuin, via hal trap met dubbel bordes naar…..
1e Verdieping: overloop met vaste kast, parketvloer met bies en toilet met fontein, slaapkamer aan voorzijde met vaste kasten, zitvensterbank, openslaande deuren naar balkon, deur naar wasruimte tussen voor- en achterslaapkamer en tevens toegang tot ruime badkamer voorzien van ligbad, douche en dubbele wastafel, zijkamer aan achterzijde met vaste kast en deur naar terras over volle breedte achterzijde, slaapkamer aan achterzijde met zitvensterbanken, openslaande deuren naar terras en toegang naar wasruimte tussen slaapkamers, via overloop vaste trap naar….
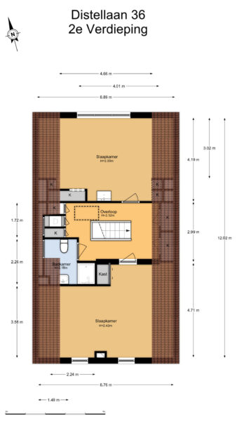
2e Verdieping: overloop met bergruimte, dakkapel en losse trap naar vliering, slaapkamer aan voorzijde met vaste kasten en wastafel, slaapkamer aan achterzijde voorzien van vaste kast, 2e badkamer met douche, wastafel en toilet
Bijzonderheden:
* Woonoppervlakte ca. 251 m2, inhoud ca. 1000 m3 en 610 m2 eigen grond
* Zonnige tuin rondom
* Comfortabel gezinshuis met 5 ruime slaapkamers en 2 badkamers
* Vrijstaande stenen garage met vliering
* Royale oprit voor 2 auto’s
* Authentieke details aanwezig
* Voor indeling en maatvoering zie plattegronden
* Oplevering in overleg
Algemeen
- Plaats
- Aerdenhout
- Status
- Verkocht
- Buurt
- Aerdenhout-Centrum
- Aantal kamers
- 8
- Aantal slaapkamers
- 5
- Aantal badkamers
- 2
- Woonoppervlakte
- 251 m2
- Perceel oppervlakte
- 610 m2
- Ligging
- Aan rustige weg, In woonwijk
- Bouwjaar
- 1933
- Isolatie
- Gedeeltelijk dubbelglas
- Type verwarming
- CV ketel, Open haard
- Onderhoud buiten
- Goed
- Onderhoud binnen
- Goed
- Voorzieningen
- TV kabel, Rookkanaal
- Energieklasse
- G
- Soort dak
- Mansardedak
- Parkeer faciliteiten
- Op eigen terrein
- Schuur/bergruimte
- 2
- Woning type
- Woonhuis






















































