Klarenbeekstraat 41B, Haarlem
Verkocht onder voorbehoudPrijs: € 210.000,-
Beschrijving
PUUR* wonen in dit lichte startersappartement in de gezellige Leidsebuurt.
Zo sta je binnen enkele minuten op de Grote Markt of NS-station Haarlem. Buurtwinkels vind je om de hoek bij Plaza West.
De Vereniging van Eigenaars is reeds opgestart en geeft mogelijkheden om mee te praten over toekomstig onderhoud van het pand. Ideaal toch?
Zie jij jezelf hier een eerste stap maken op de woningmarkt? Kom kijken en laat je verrassen!
Goed om te weten:
* Actieve onder VvE (212,- p/m, inclusief voorschot G/L/W)
* Fundering hersteld in 2003
* Tussenmeter gas geplaatst.
* Parkeren middels vergunning
* Grote Markt op 4 minuten fietsafstand en het NS-station Haarlem op 5 minuten fietsafstand
* Verschillende winkels en eetgelegenheden om de hoek
* Strand in 20 minuten met de fiets
* Oplevering in overleg (kan spoedig)
* Niet-bewonersclausule van toepassing
* As-it is clausule van toepassing
* Notariskeuze verkoper
Locatie
De ligging in de gezellige ‘Leidsebuurt’ is ideaal, met het bruisende centrum van Haarlem op loopafstand. Buurtsuper, leuke koffietent GAST en Plaza West met winkels zoals de AH en Etos liggen ‘om de hoek’. Het station is makkelijk met de fiets bereikbaar. De duinen en de stranden van Zandvoort en Bloemendaal zijn ook makkelijk met de fiets bereikbaar.
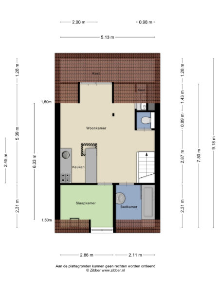
Indeling
Begane grond: entree, hal met meterkast, trapopgang.
1e Verdieping: entree tot appartement en trap naar tweede etage.
2e verdieping: grote open woonkamer/keuken met dakkapel. Keuken met baropstelling en vanuit woonkamer toegang tot separaat toilet. Aan de voorzijde een ruime badkamer met ligbad/douche, wastafel en aansluiting voor machine en droger. Ook is er een slaapkamer met dakkapel te vinden aan de voorzijde. Beide Badkamer en slaapkamer beide toegankelijk via de woonkamer.
*ENGLISH BELOW*
PUUR* living in this bright starter flat in the lively Leidsebuurt neighbourhood.
You can be at the Grote Markt or Haarlem railway station in just a few minutes. Local shops are just around the corner at Plaza West.
The Owners’ Association has already been set up and offers opportunities to have a say in the future maintenance of the building. Ideal, right?
Can you see yourself taking your first step into the housing market here? Come and take a look and be surprised!
Good to know:
* Active under Owners’ Association (212 per month, including advance payment for gas, water and electricity)
* Foundations repaired in 2003
* Sub-meter for gas installed.
* Parking by permit
* Grote Markt 4 minutes by bike and Haarlem railway station 5 minutes by bike
* Various shops and eateries around the corner
* Beach 20 minutes by bike
* Delivery in consultation (can be soon)
* Non-resident clause applies
* As-is clause applies
* Notary choice seller
Location
The location in the pleasant “Leidsebuurt” neighbourhood is ideal, with the bustling centre of Haarlem within walking distance. A local supermarket, the pleasant coffee shop GAST and Plaza West with shops such as AH and Etos are just around the corner. The station is easily accessible by bicycle. The dunes and beaches of Zandvoort and Bloemendaal are also easily accessible by bicycle.
Layout
Ground floor: entrance hall with meter cupboard, staircase.
First floor: entrance to apartment and staircase to second floor.
Second floor: large open-plan living room/kitchen with dormer window. Kitchen with bar counter and access to separate toilet from the living room. At the front, a spacious bathroom with bath/shower, washbasin and connections for washing machine and dryer. There is also a bedroom with dormer window at the front. Both the bathroom and bedroom are accessible via the living room.
Kenmerken
- Koopprijs
- € 210.000,-
- Plaats
- Haarlem
- Status
- Verkocht onder voorbehoud
- Buurt
- Leidsebuurt-oost
- Aantal kamers
- 2
- Aantal slaapkamers
- 1
- Woonoppervlakte
- 36 m2
- Ligging
- Aan rustige weg, In woonwijk
- Bouwjaar
- 1904
- Type verwarming
- CV ketel
- Onderhoud buiten
- Matig tot redeljk
- Onderhoud binnen
- Matig tot redelijk
- Voorzieningen
- Mechanische ventilatie, TV kabel, Dakraam, Glasvezel kabel, Natuurlijke ventilatie
- Energieklasse
- E
- Soort dak
- Samengesteld dak
- Parkeer faciliteiten
- Parkeervergunningen
- Woning type
- Appartement
Plattegronden
Uitzicht op straat
Zoek de locatie
kom jij kijken?
Een bezoek vertelt het meest. Onze makelaars nemen graag de tijd voor een rustige rondleiding.
Contacteer ons nu






























