Leliegracht 9C, Amsterdam
BeschikbaarPrijs: € 4.500,- per maand
Beschrijving
Volledig en zeer hoogwaardig gerenoveerd appartement aan de Leliegracht – modern, stijlvol en instapklaar
Aan een van de mooiste grachten van Amsterdam ligt dit volledig gerenoveerde en luxe afgewerkte appartement, verdeeld over twee verdiepingen. De woning is met veel zorg en smaak ingericht en direct beschikbaar voor bewoning. De combinatie van moderne voorzieningen en klassieke charme maken dit appartement tot een unieke woonplek in hartje Amsterdam. In de directe omgeving vindt u tal van uitstekende restaurants, gezellige cafés en stijlvolle boetieks.
Indeling
Entree via het gemeenschappelijke trappenhuis op de tweede verdieping. Bij binnenkomst betreedt u de lichte en sfeervolle woonkamer aan de voorzijde van de woning. Dankzij de grote raampartijen heeft u hier een prachtig uitzicht over de gracht. De ruimte is voorzien van een charmante open haard en biedt voldoende plaats voor zowel een zit- als eethoek.
De open keuken ligt centraal in de woning en is volledig uitgerust met hoogwaardige inbouwapparatuur, waaronder een oven, vaatwasser, koelkast, vriezer en een kookplaat. Door de open indeling vormt de keuken een uitnodigend verlengstuk van de woonkamer.
Aan de rustige achterzijde van deze verdieping bevindt zich een ruime slaapkamer, voorzien van inbouwkasten en een eigen en-suite badkamer met douche en wastafel. Deze kamer is ideaal als gastenverblijf, thuiskantoor of tweede slaapkamer.
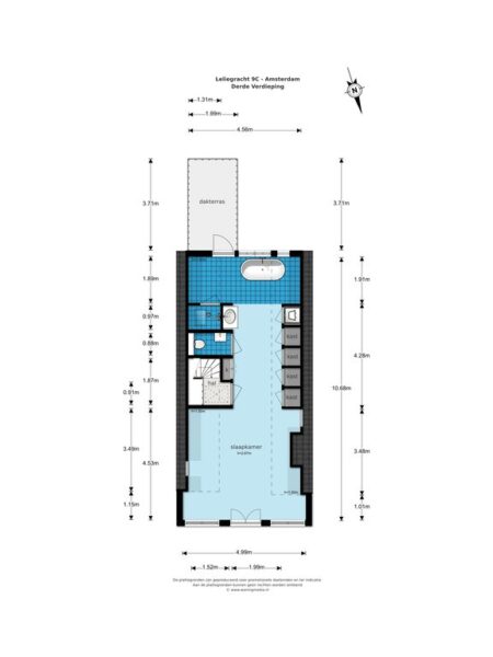
Derde verdieping
Via de interne trap bereikt u de bovenste woonlaag. Aan de voorzijde vindt u een tweede, zeer royale slaapkamer met veel kastruimte en een ingebouwd bureau, ideaal als werkplek.
Aan de achterzijde is de luxe badkamer gelegen, voorzien van een groot ligbad, een royale inloopdouche en een modern wastafelmeubel. Aangrenzend aan de badkamer bevindt zich een heerlijk dakterras – een rustige en privé plek om buiten te zitten en van de zon te genieten. In de hal op deze verdieping is tevens een separaat toilet aanwezig.
Locatie
De woning bevindt zich op een toplocatie binnen de Amsterdamse grachtengordel, op loopafstand van iconen zoals de Westertoren en het Anne Frankhuis. De buurt biedt een perfecte mix van cultuur, historie en levendigheid. In de nabijgelegen Jordaan vindt u wekelijks markten, leuke eetgelegenheden en diverse speciaalzaken.
De ligging is ook praktisch: supermarkten en andere dagelijkse voorzieningen zijn in de directe omgeving te vinden. Met de fiets bent u snel in het Westerpark of op de Dam. Dankzij meerdere tramverbindingen vanaf de Rozengracht en de goede bereikbaarheid van de A10 is dit appartement ook uitstekend ontsloten voor wie regelmatig reist.
BIJZONDERHEDEN:
* Huurprijs: €4.500,-
* Waarborgsom: €9.000,-
* Woonoppervlakte: 124 m²
* 2 slaapkamers, 2 badkamers
* Dakterras
* Gemeubileerd of gestoffeerd
* Oplevering in overleg
Kenmerken
- Huurprijs
- € 4.500,-
- Plaats
- Amsterdam
- Status
- Beschikbaar
- Buurt
- Leliegracht e.o.
- Aantal kamers
- 3
- Aantal slaapkamers
- 2
- Aantal badkamers
- 2
- Woonoppervlakte
- 124 m2
- Ligging
- Aan water, In centrum, Vrij uitzicht
- Bouwjaar
- 1906
- Type verwarming
- CV ketel
- Onderhoud buiten
- Uitstekend
- Onderhoud binnen
- Uitstekend
- Voorzieningen
- Mechanische ventilatie, TV kabel
- Parkeer faciliteiten
- Openbaar parkeren, Betaald parkeren, Parkeervergunningen
- Woning type
- Appartement
Plattegronden
Uitzicht op straat
Zoek de locatie
kom jij kijken?
Een bezoek vertelt het meest. Onze makelaars nemen graag de tijd voor een rustige rondleiding.
Contacteer ons nu



































