Nassauplein 2, Zandvoort
Verkocht onder voorbehoudPrijs: € 595.000,-
Beschrijving
Dichtbij het strand wonen
In één van de meest geliefde buurten staat deze verrassend ruime twee-onder-een kap woning. Hier woon je heerlijk rustig aan een leuk plein en met de zee en alle gezelligheid van het dorp op zeer korte loopafstand. De woning bestaat o.a. uit een lichte woonkamer, een half open keuken, 4 slaapkamers en een badkamer. De voortuin is op het zuiden gelegen en is net als de zijtuin heerlijk zonnig. Een fijne plek om lekker buiten en eventueel gezellig met de andere buurtbewoners van het plein te zitten. En aan de achterzijde vind je een besloten patio met veel privacy. Zowel vanuit het huis als via de zijtuin en de patio is de aangebouwde schuur bereikbaar.
De ligging van deze halfvrijstaande woning is perfect. De woning heeft een rustige ligging aan een plein in de gewilde Zuidbuurt met alleen bestemmingsverkeer. Je loopt met slechts enkele minuten naar het strand. Ook ben je zo in de duinen of in het gezellige centrum van Zandvoort met diverse boetieks, restaurants, uitgaansgelegenheden en supermarkten. Het NS-Station met directe verbinding naar Haarlem/Amsterdam en diverse busverbindingen liggen op korte afstand evenals veel natuurgebieden, het F1 circuit en uitvalswegen. En de kinderen fietsen makkelijk naar diverse sportfaciliteiten, naar de basisschool of naar de middelbare school waarvan er zelfs 1 in het dorp te vinden is.
Indeling:
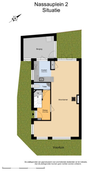
Parterre: entree, hal met verdiepte trapkast en modern zwevend toilet met fontein, lichte woonkamer met zijcorner voorzien van visgraat parketvloer met bies, houtkachel, ornamenten plafond en openslaande deuren naar tuin, modern nette semi open keuken met enig inbouwapparatuur en deur naar aangebouwde stenen schuur voorzien van wasmachine/droger aansluiting, deur naar tuin en deur naar voortuin, via hal trap naar…….
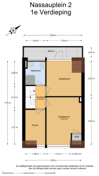
1e Verdieping: overloop, zijkamer aan voorzijde met dakkapel, slaapkamer aan voorzijde met dakkapel en vaste kast, slaapkamer aan achterzijde met dakkapel en deur naar balkon over volle breedte, moderne badkamer met douche, zwevend toilet, wastafel en handdoekradiator, via overloop trap naar….
2e Verdieping: overloop met cv-ketel en extra zijraam, slaapkamer met dakkapel
Bijzonderheden:
* Woonoppervlakte ca. 102 m2, inhoud ca. 403 m3 en 98 m2 eigen grond
* Verrassend ruim
* 7 Zonnepanelen
* Zeer dichtbij centrum en strand
* Voor indeling en maatvoering zie plattegronden
* Oplevering in overleg
Kenmerken
- Koopprijs
- € 595.000,-
- Plaats
- Zandvoort
- Status
- Verkocht onder voorbehoud
- Buurt
- Brederode- Gerkestraat e.o.
- Aantal kamers
- 5
- Aantal slaapkamers
- 4
- Aantal badkamers
- 1
- Woonoppervlakte
- 102 m2
- Perceel oppervlakte
- 98 m2
- Ligging
- Aan rustige weg, In woonwijk
- Bouwjaar
- 1933
- Isolatie
- Dakisolatie, Muurisolatie, Dubbelglas
- Type verwarming
- CV ketel, Houtkachel
- Onderhoud buiten
- Goed
- Onderhoud binnen
- Goed
- Voorzieningen
- TV kabel, Rookkanaal, Zonnepanelen
- Energieklasse
- C
- Soort dak
- Samengesteld dak
- Parkeer faciliteiten
- Openbaar parkeren, Parkeervergunningen
- Schuur/bergruimte
- 1
- Woning type
- Woonhuis
Plattegronden
Uitzicht op straat
Zoek de locatie
kom jij kijken?
Een bezoek vertelt het meest. Onze makelaars nemen graag de tijd voor een rustige rondleiding.
Contacteer ons nu
















































