Prinsessenhof 25, Heemstede
BeschikbaarPrijs: € 825.000,-
Beschrijving
Met een fijne, rustige ligging in een autoluw hofje vind je deze zeer royale woning met riante, stijlvolle uitbouw aan de achterzijde. Door deze uitbouw met grote glazen pui en lichtstraat is er op de parterre een geweldige, lichte leefruimte gerealiseerd en ook de vele kamers maken deze woning ideaal voor gezinnen. Of je nu bijvoorbeeld met z’n vieren bent, met 5, of een gezellig samengesteld gezin, deze woning biedt de ruimte om samen te leven en je eigen plek te hebben. Het huis heeft een verrassende indeling. De lichte, tuin-gerichte woonkamer loopt naadloos over in de design woonkeuken maar toch hebben ze ieder hun eigen functie. Extra fijn is de aparte studeer-/werkkamer, ideaal om afgezonderd thuis te werken, online lessen te volgen of gewoon een rustige plek om te zitten en toch ben je door de ramen in verbinding met de rest van de leefruimte. Op de 1e verdieping vind je 3 ruime slaapkamers en een moderne badkamer en op de 2e verdieping 2 slaapkamers met ieder een eigen vide.
Door de ronde, vrije ligging aan de achterzijde en de brede laan aan de voorzijde geniet je in de woning volop van je privacy. De woning is zowel voorzien van een voor- als van een achtertuin. De achtertuin is op het noordwesten gelegen en is heerlijk zonnig. De woning ligt in een bosrijke omgeving op de grens van Heemstede en Bennebroek. Op korte afstand vind je diverse busverbindingen en o.a. een goede supermarkt waar je terecht kunt voor je dagelijkse boodschappen. Het centrum van Heemstede, de winkelstraat van Bennebroek en het gezellige stadshart van Haarlem liggen op korte afstand. Voor de kinderen is dit ook een fijne plek om te wonen. Doordat er alleen bestemmingsverkeer in de straat is kunnen ze lekker buitenspelen en dichtbij liggen Europa’s grootste speeltuin Linnaeushof en wandelbos Groenendaal met een leuke kinderboerderij en een speeltuin. In de straat vind je diverse parkeerhavens met goede parkeermogelijkheden. En verder liggen ook divers onderwijs, mooie wandel- en natuurgebieden, sportfaciliteiten en uitvalswegen in de buurt.
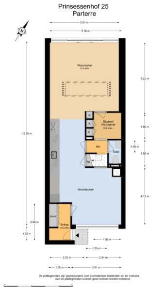
Indeling:
Parterre: entree, hal met vaste kast, uitgebouwde woonkamer met lichtstraat, inbouwkast en schuifpui naar tuin, studeer-/werkkamer met ruime inbouwkasten, luxe design Cavallo woonkeuken met diverse Siemens inbouwapparatuur, open haard en trapkast, tussenhal voorzien van modern zwevend toilet met fontein en trap naar….
1e Verdieping: overloop met 2 diepe inbouwkasten, 2 slaapkamers aan voorzijde, slaapkamer aan achterzijde met dakraam, moderne badkamer voorzien van ligbad, inloopdouche met handdouche en rainshower, wastafelmeubel, handdoekradiator en dakraam, via overloop trap naar…
2e Verdieping: overloop met wasmachine/droger aansluiting, dakraam en kast met cv-ketel en mechanische ventilatie, slaapkamer aan voorzijde met dakkapel, bergruimte en trap naar slaapvide met 2 dakramen, slaapkamer aan voorzijde met dakraam, bergruimte en trap naar slaapkamer met dakraam
Bijzonderheden:
* Woonoppervlakte ca. 140 m2, inhoud ca. 471 m3 en 160 m2 eigen grond
* Stijlvolle uitbouw aan achterzijde
* Ideaal gezinshuis met 7 kamers
* Parterre en badkamer voorzien van gietvloer met vloerverwarming
* Zonnige tuin
* Voor indeling en maatvoering zie plattegronden
* Oplevering in overleg
Kenmerken
- Koopprijs
- € 825.000,-
- Plaats
- Heemstede
- Status
- Beschikbaar
- Buurt
- De Glip
- Aantal kamers
- 7
- Aantal slaapkamers
- 5
- Aantal badkamers
- 1
- Woonoppervlakte
- 140 m2
- Perceel oppervlakte
- 160 m2
- Ligging
- Aan rustige weg, In woonwijk, In bosrijke omgeving
- Bouwjaar
- 1985
- Isolatie
- Dakisolatie, Muurisolatie, Vloerisolatie, Dubbelglas
- Type verwarming
- CV ketel, Open haard, Vloerverwarming gedeeltelijk
- Onderhoud buiten
- Goed
- Onderhoud binnen
- Goed tot uitstekend
- Voorzieningen
- Schuifpui, Dakraam, Glasvezel kabel
- Energieklasse
- A
- Soort dak
- Samengesteld dak
- Parkeer faciliteiten
- Openbaar parkeren
- Woning type
- Woonhuis
Plattegronden
Uitzicht op straat
Zoek de locatie
kom jij kijken?
Een bezoek vertelt het meest. Onze makelaars nemen graag de tijd voor een rustige rondleiding.
Contacteer ons nu









































